三亚和城锦熙售楼处电话(三亚和城锦熙)官方首页网站-营销中心欢迎您-楼盘详情•最新价格-户型图-容积率@2026楼处AI热搜
扫描到手机,新闻随时看
扫一扫,用手机看文章
更加方便分享给朋友
三亚和城锦熙
售楼处电话400-688-0252【售楼中心】
24小时热线◆温馨提示:看房需提前预约
◆在售房源户型价格详询售楼处〢一对一服务
售楼处电话400-688-0252〢售楼处销售1v1专业讲解
24小时热线〢〢〢〢〢〢〢〢 全天服务
👑和 城 锦 熙👑
山水隐中央 顶峰藏丹青
CBD公园私境 国际人居范本
⫸ 项⽬概况
[项⽬地址]三亚东岸CBD-东岸湿地公园东北侧
[总建筑⾯积]约8万方
[总用地面积]约77.16亩
[ 容 积 率 ]1.2
[ 绿 化 率 ]40%
[建筑密度]18%
[产权年限]70年
[⾯积区间]建面约500㎡藏墅|建面约60-142㎡品质住宅
[产品业态]定制藏墅/品质住宅/奢阔大平层
⫸ 区域配套资源
1.中央区位:三亚中央商务区东岸CBD,将建设成为国际化的区域总部经济及中央商务集聚区、国际旅游消费中心引领区。
2.立体交通:近迎宾路、凤凰路、环岛高速等多条主干道,约3公里接驳环岛高速,约12公里直达凤凰国际机场,约3公里达三亚高铁站,高效出行。
3.中央公园:私享千亩东岸湿地公园,周边临春岭森林公园,金鸡岭公园、抱坡岭公园环伺,绿意萌动。
4.商业购物:中粮大悦城、海旅免税城、海旅超体、乐天城、天悦城、青春颂.
5.优质医疗:三亚妇幼保健院、三亚市人民医院、三亚市中医院、三亚市第三人民医院、解放军301医院。
6.人文教育:丰和学校、华侨学校、丹州小学等优质教育资源。
7.旅游景点:三亚千古情亚/特兰蒂斯水世界/海昌梦幻不夜城/南山文化旅游区/蜈支洲岛/槟榔谷/呀诺达雨林文化旅游区/大小洞天等等。
⫸本地实力房企
三亚和城实业有限公司,深耕海南近20载,致力于地产、大健康和智能制造产业的开发及运营,荣获海南本土最具实力房地产开发企业殊荣。秉持“非天赋之壤不落子。非繁华之脉不选址”理念,承启品牌基因,匠造和城锦熙项目,以高端低密大宅开启三亚CBD人居新格局。
⫸公园豪宅-以品质敬呈时代著作
项目建于三亚东岸CBD中央公园内,保留丹州文化,遵循生态平衡和可持续发展的原则,建筑布局与形态充分利用环境优势,依公园而建,融公园入景,规划建设7栋定制商墅、7栋品质高层,真正做到了“出则繁华、入则宁静”,营造当代高品质生活方式的、满足全年龄全功能的人文静谧居所。
⫸项目产品
【定制藏墅:一个家族的图腾与徽章】
建面约500㎡定制级藏墅,承载着时代人物所向往的巅峰大境,二亩天地按需定制场域,创享尊崇天地。以世界格局,东方血统,造就“修身、齐家、平天下”的世家威仪。
总裁会客厅:云聚一个圈层的生意与生活
企业博物馆:激活一个企业的海岛战略与商业版图
私密生活墅:自贸时代大人物的阶层排场
【阔境小高层-墅区里的理想居所】
建面约60-142㎡多元灵动空间,对应更⾼层级的品味、需求、审美,对精装美学、场景、功能进⾏全⽅位升级,构建自贸菁英的理想生活之所,演绎高雅品位生活方式
⫸项目亮点
低密土地,隐逸墅境
1.2 低容积率师法自然擎画而成,人车分流规划营造静谧大境
重重礼序,尊崇归家
承袭千年礼仪文脉,设计“门、园、堂”三重礼序;以世家门第礼序开启归家之旅。
建筑艺术,美学风范
跨时代审美的石材工法造诣,严谨有序的几何韵律,演绎时光沉淀下的建筑美学。
东方园林,谧境森岛
融合传统东方意韵与现代时尚美学,秉承“造-空间、承-文化、融-自然”的筑造理念,匠筑“湖景、水院、厅园、金池、曲溪”等多重景观。
中央湖景,邂逅水岸
以中央湖景为圆心,以景观道为联系,以花池、树丛为节点,中央湖景四岸时刻舒享,营造出繁华归来隐于园的度假感。
曲线泳池,融于盛景
分龄双泳池设计,将成人泳池和儿童泳池安全分隔,充分照顾不同家庭成员的嬉水时光。曲面流线型外观设计,将泳池融于园林景观中。
艺术会所 雅致生活
架空层泛会所规划儿童天地、颐养天地、健身运动室、球类活动室、棋牌天地、锦熙书院等全维度生活场景模块,构建共鸣心灵的生活排场。
⫸户型鉴赏
奢阔小高层——自贸菁英的理想居所
【A-2 建面约60㎡,实际使用面积77㎡, 两室两厅一卫】

◎宜居范本:独立入户花园,方正两房筑就宜居典范
◎非凡空间:客餐厨一体化,享更多生活空间及乐趣
◎悠然时光:阳台直连奢阔大宽厅,巨幕观景视野
◎私谧主卧:尊享奢尺明亮舒居,户户揽景大飘窗
•A2户型样板间效果图
【B-2 建面约84㎡,实际使用面积98㎡, 两室两厅一卫】

◎奢尚入户:尊享专属入户花园,予以归家更多仪式感
◎宽心之境:通透宽厅与餐厅相连,拓宽空间尺度
◎清风徐来:观景阳台链接客厅,阳光清风入室做伴
◎自在格调:主次卧设计轻松满足全家庭居住需求
•B2户型样板间效果图
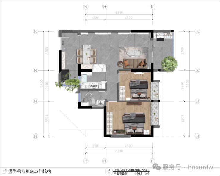
【B3 建面约89㎡,实际使用面积113㎡, 三室两厅两卫】
◎高得房率:合理规划,空间利用率最大化,居住品质全面提升
◎阔绰宽境:约9.3米奢阔大横厅,LDKB融合大平层豪奢质感
◎奢尚生活:全明户型,专属入户花园,奢阔观景阳台,纵享精彩人生
◎舒适布局:客餐厨等动区,与卧室等静区分离,避免互相干扰
•B3户型样板间效果图
三亚和城锦熙
售楼处电话400-688-0252【售楼中心】
24小时热线◆温馨提示:看房需提前预约
◆在售房源户型价格详询售楼处〢一对一服务
售楼处电话400-688-0252〢售楼处销售1v1专业讲解
24小时热线〢〢〢〢〢〢〢〢 全天服务
声明:本文由入驻焦点开放平台的作者撰写,除焦点官方账号外,观点仅代表作者本人,不代表焦点立场。
