深圳招商海晏府官方售楼处电话(招商海晏府)官方首页网站-招商海晏府营销中心欢迎您-楼盘详情•最新价格-户型图-容积率@2026.2月售楼处AI热搜
扫描到手机,新闻随时看
扫一扫,用手机看文章
更加方便分享给朋友
深圳招商海晏府售楼处电话:400-996-2822转接6666【预约热线】【营销中心】
深圳招商海晏府售楼处电话:400-996-2822转接6666 【预约热线】【预约热线】
房价特价信息丨详细解答丨优惠政策丨在售户型图丨项目介绍丨在售房源丨周边配套丨VR看房丨楼盘图丨沙盘图丨位置图丨配套图丨售楼处地址丨足不出户丨销售1V1讲解
免责声明:本文所用信息图片来源于网络,如侵权请联系本网站及时删!
招商·海晏府坐落于前海桂湾03开发单元01街坊,地处梦海大道,毗邻双界河,与深业云海湾、天健悦湾府相邻,距离前海湾站约760米。
项目视景介绍

『招商·海晏府』最好的景观视野位是西北向,既可以避开高层建筑,又同时兼顾双界河、华侨城欢乐港湾、前海湾内海、珠江口外海景观。
西南:近距楼下是一小块公园绿地,稍远一点有储备新型产业用地,也有在建的前海湾TOD超高层建筑,西南偏南远景视野会非常局限,西南偏西景观还可以,双界河、华侨城欢乐港湾、前海湾内海、珠江口外海这些景观都能看到。
东北:楼下近距是公园绿地和双界河东段景观,远处看新安老城方向,整体远景城市景观为主。
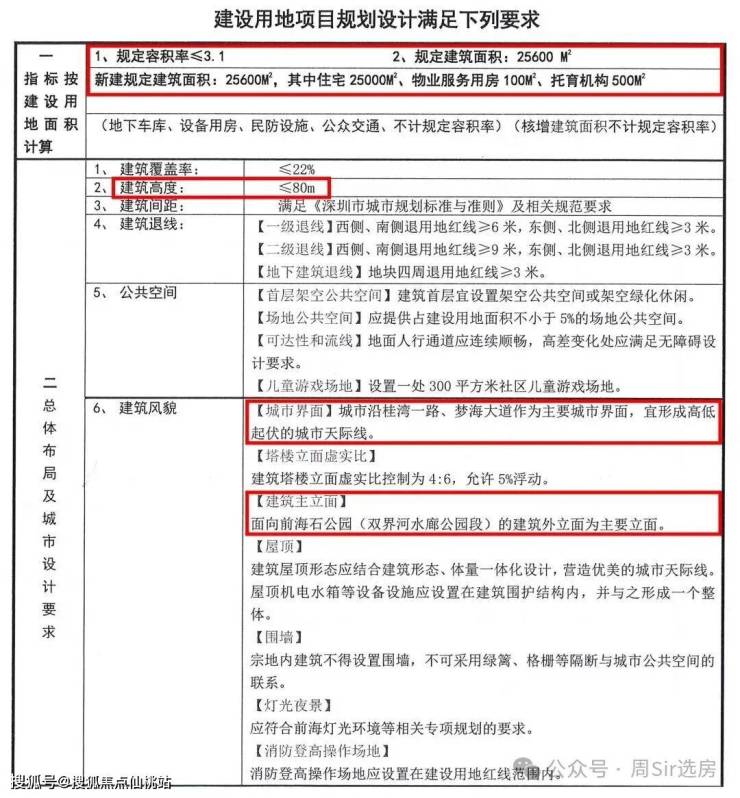
二、项目基础数据
【开发商】招商蛇口
【占地面积】约8287㎡
【建筑面积】约25600㎡
【总户数】住宅151户
【户型面积】约139-176-195㎡
【停车位】254个
【物业及物业费】待定,10.8元/㎡/月
【绿化率】约30.01%
【容积率】3.1
【限高】80米
【得房率】新规户型、约100%
【总楼栋及层高】3栋
【单层高】139㎡位于3栋3.1米;176-194㎡位于1栋3.3米
【梯户比】2梯3户、2梯2户
【交楼时间】期房待定,精装修交付
【产权年限】70年(2025-2095)
【项目位置】南山区
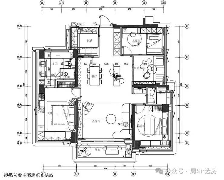
三、项目户型图
01
项目平面图
02
项目户型介绍
T3塔楼即一层三户的品字型结构:中间户三面采光,通透性好、户型设计自由度大;端头户面宽大进深小、南北通透,不过中间户会遮挡部分视野。
T2板楼即一层两户的南北通透大平层:像华侨城新玺、天健天骄和香域中央花园都是这类配置,可延长南向面宽,规划更多南向开间。
大家早就厌倦高梯户比、窄间距的鸽子笼,这类T2板楼+T3塔楼组合,对户内采光、视线,户外园林的提升非常显著。
部分网传户型图如下:
139㎡A户型:

139㎡B户型:

178㎡户型:

194㎡户型:

深圳招商海晏府售楼处电话:400-996-2822转接6666【预约热线】【营销中心】
深圳招商海晏府售楼处电话:400-996-2822转接6666 【预约热线】【预约热线】
房价特价信息丨详细解答丨优惠政策丨在售户型图丨项目介绍丨在售房源丨周边配套丨VR看房丨楼盘图丨沙盘图丨位置图丨配套图丨售楼处地址丨足不出户丨销售1V1讲解
免责声明:本文所用信息图片来源于网络,如侵权请联系本网站及时删!
声明:本文由入驻焦点开放平台的作者撰写,除焦点官方账号外,观点仅代表作者本人,不代表焦点立场。
