万宁中海神州半岛售楼处(中海神州半岛)官方网站-中海神州半岛官方营销中心欢迎您-中海神州半岛2026楼盘详情•最新价格-户型图-容积率
扫描到手机,新闻随时看
扫一扫,用手机看文章
更加方便分享给朋友
万宁中海神州半岛
售楼处电话:400-100-1299转5888
网上售楼中心〢欢迎来电咨询〢1v1销售专业讲解

==⛳果岭院项目概况⛳==
【天岚院组团】 :32栋
【面 积】:约300㎡(实得约753㎡)
【层 高】:负一层约4.2m、首层约4m、二层约3.3m
【赠 送】:负一层约230㎡,庭院约378-625㎡(含下沉庭院),露台送约200㎡,每栋商存在差异
【海岚院组团】:55栋
【面 积】:约190㎡环景独栋
【层 高】:首层约4.2m、二层约6m
【赠 送】:约65㎡空中花园,约208-637㎡球场级绿地
【面 积】:约240㎡环景独栋
【层 高】:首层约4.2m、二层约6m
【赠 送】:约209-571㎡球场级绿地,约82㎡星空露台
将41洞滨海高尔夫球场头排风光与丰沛自然资源、生活资源价值与自身稀贵属性连接,缔造顶级优质资产,打造高净值人群的私属领地
中海神州高尔夫球场由世界高球大师韦斯科夫亲自规划设计,荣获2024“亚洲百佳球场”第4名,国内第1名,各类高尔夫竞技赛事举办地。成为企业家们的第二会客厅,一场挥杆,为事业锦上添花。

4100亩|锦标级场地 |36个标准球洞|5种球场风格体验|中巡赛(China Golf Association Tour)场地
与夏威夷同款的世界度假坐标——“世界长寿之乡”海南万宁,天赋双海、四湾、六岭、红树林、岛屿等稀世生态资源,是海南最大独立原生态半岛,18平方公里的活力岛,都成为社交主场。

〔3大高端星级度假酒店〕
君悦/喜来登/福朋等国际一线滨海酒店群,多元化度假商务排场,旅居、社交,皆可在此同步世界。
〔4.47万方滨海风情商业街〕
商家齐全,全国各地美食汇聚,满足挑剔味蕾,日常休闲娱乐、购物便利,岛居无忧
〔沙滩俱乐部云集〕
跳伞/冲浪/浮潜/海钓/摩托艇,滨海户外运动一站式体验中心
〔41洞滨海高尔夫球场〕
海岸沙丘和嶙峋巨石形成独特地貌,海滩景观完美融入球场设计之中
〔500亩半岛湖公园〕
丰富热带动植物观赏资源,日常休闲、聚友运动好去处
网红地标群,热门影视综艺的宠儿
网红灯塔/海上秋千/行宿物语露营基地/ DEDECO酒吧/科罗娜落日酒吧/阿卡迪亚餐吧等
影视/综艺:《消失的她》《罚罪》《欢迎来到麦乐村》《极限挑战》《这是我的岛》....
杂志:《新视线》 《国家地理》
明星同款旅游线路、景点,打造海南文旅的“综艺岛”

仅0.4 容积率的超低密独栋,能兼顾私密性与可定制型,除了可以满足家族居住度假需求,还可用以满足私人会所、商务办公、艺术工作室、高端私宴厅等多元化功能空间。

〔约300㎡一线果岭独栋〕
⛳直面高尔夫球场🌸户户享奢阔花园 🌅IMAX观景尺度🌸超大露台
第一层:
〔起居空间 ✨一层约230㎡,层高约4米〕
户外庭院:约378-625㎡阔景院落,赏花观月,收藏静谧
双厅双厨:宴会社交,中西双厨,超10m开间游刃有余
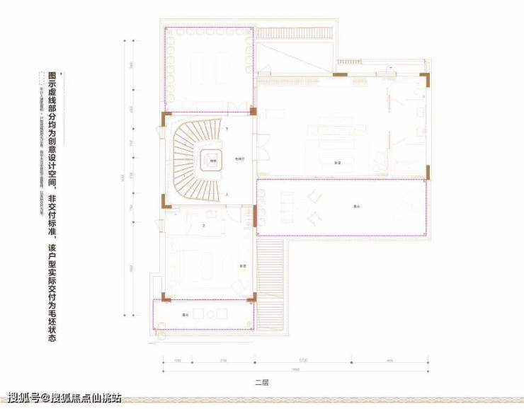
第二层:
〔居住空间✨二层双卧,层高约3.3米〕
套房主卧:奢阔南向奢阔大露台套房,自带衣帽间与独立卫浴
静谧次卧:南向露台与卧房相连,自成一方私密空间
第三层:
〔景观空间✨露台赠送面积约200㎡〕
处远眺山海,全览高尔夫球场优美景致,放松身心、亲朋好友社交好去
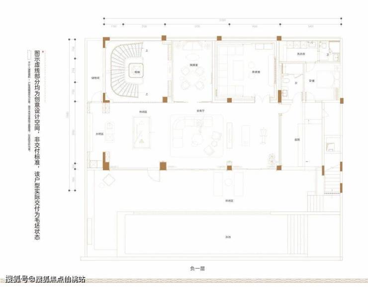
负一层:
〔起居空间✨约230㎡赠送,层高约4.2米〕
娱乐百变空间:打造专属健身区域、布幕观影、聚会娱乐,安放逸趣
商务休憩空间:静谧世界,适合商务伙伴于专属会客厅洽谈、社交
万宁中海神州半岛
售楼处电话:400-100-1299转5888
网上售楼中心〢欢迎来电咨询〢1v1销售专业讲解
声明:本文由入驻焦点开放平台的作者撰写,除焦点官方账号外,观点仅代表作者本人,不代表焦点立场。
