【天正三亚湾壹号】售楼处电话—百科详情【官网预约热线】—实时动态--最新价格-户型图-容积率@天正三亚湾壹号营销中心
扫描到手机,新闻随时看
扫一扫,用手机看文章
更加方便分享给朋友
三亚天正三亚湾壹号
售楼处电话:400-100-1299转5888
网上售楼中心〢欢迎来电咨询〢1v1销售专业讲解
——项目基础信息——
开发商:三亚永基房地产开发有限公司
建筑面积:约128391m² 占地面积:56亩
绿地率:约40% 容积率:2.5
土地年限:70年 标准层高:约3.1米
规划楼栋:9栋16层-17层板楼 楼栋排布:一梯一户、两梯两户
总户数:600户 车位配比:1:1.5
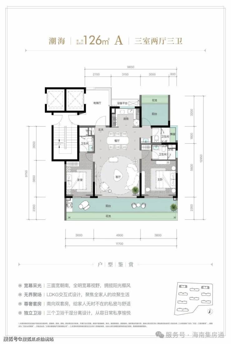
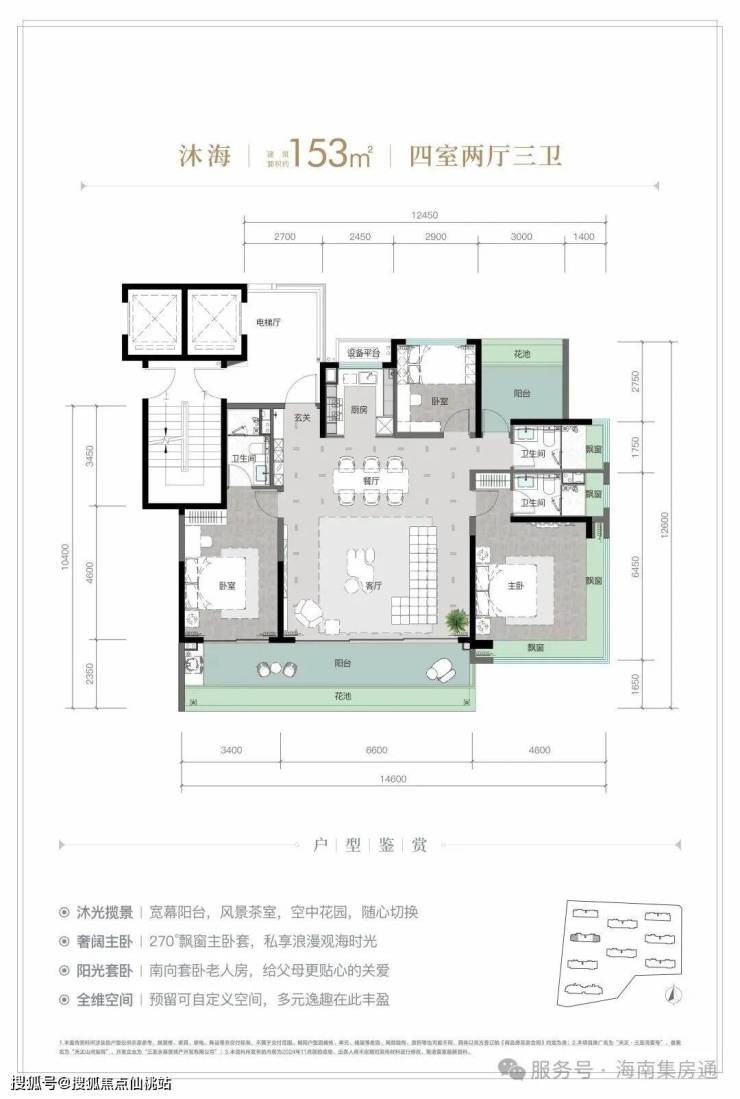
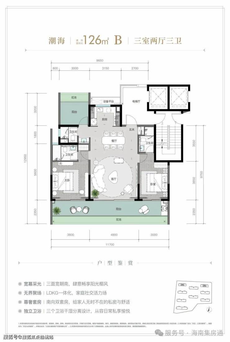
户型面积:
126㎡三室两厅三卫 | 149 ㎡四室两厅三卫
153㎡四室两厅三卫 | 177㎡四室两厅三卫
211 ㎡五室两厅三卫 | 213 ㎡五室两厅三卫
天正·三亚湾壹号,步行约10分钟即达椰梦长廊,茶余饭后,近享海岸风光。
【高奢酒店集群】
【12年优教环伺】
三亚第九小学三亚湾校区,三亚市公立小学前列,三亚中学、上外附中(2023年最新三亚市中考各学校平均分排名第一,海棠湾的人大附中居第二)等优质教育资源。数据来源:微信公众号《真叫卢俊》
【全维三甲医疗 】
约7公里内,享三亚主城优质医疗配套,三亚哈尔滨医科大学鸿森医院、三亚中心医院、解放军425医院等三甲医院。(以上数据来源:地图导航,仅供参考)
【与海800米的默契距离 度假即日常】
距亚洲第一大道——椰梦长廊直线约800米(数据来源地图测距,仅供参考),碧海、蓝天、银沙、阳光、椰林在此交汇,天赋异禀的原生自然风光,度假盛宴时刻上演。
【约44亩海心公园环伺】
近44亩海心公园萦绕社区,汲取热带、海洋、岛屿三大在地文化基因,营造四幕、九境景观礼序,私享公园里的热带岛屿度假风情。
【全龄段 多功能会所】
【观海住假大平层 为生活高定 】
规划建筑面积约126-213㎡观海奢装大平层,约3.1米阔绰层高,部分户型创新设计270°全景飘窗主卧套、四开间朝南等,全成品高标奢装,营造全新舒居体验。
三亚天正三亚湾壹号
售楼处电话:400-100-1299转5888
网上售楼中心〢欢迎来电咨询〢1v1销售专业讲解
声明:本文由入驻焦点开放平台的作者撰写,除焦点官方账号外,观点仅代表作者本人,不代表焦点立场。
