海南臻园售楼处电话|海南臻园房价|户型解析|售楼处地址|楼盘详情|优惠活动
扫描到手机,新闻随时看
扫一扫,用手机看文章
更加方便分享给朋友
海南臻园
售楼处电话:400-100-1299转5888
网上售楼中心〢欢迎来电咨询〢1v1销售专业讲解
基本介绍
开发商:融创中国和碧桂园联合开发
楼盘地址:兴隆旅游度假区莲兴大道北侧,奥特莱斯西侧
用地属性:住宅用地
产权年限:70年
总占地:约351亩
总建面:约22万方
容积率:约0.8
绿地率:约40%
总户数:1882户
停车位:共1333个停车位,其中地上504个,地下829个
物业费:叠拼5.2元/㎡、洋房4.2元/㎡
交付时间:预计2019.12.31/2020.12.30
交付标准:装修
周边配套
商业:万宁首创奥特莱斯 、世纪华联超市、万福超市、联鑫百货超市、国深超市;
景点:角梅主题公园、兴隆热带花园、兴隆热带植物园、南燕湾景区、石梅湾景区;
医院;兴隆红十字医院;
学校:兴隆中心学校、兴隆第一中学、兴隆第四小学
酒店:假日宜居公寓、兴隆华侨农场彩明旅馆、兴隆远方的家客栈、云鹤休闲人家;
交通:高铁神州站
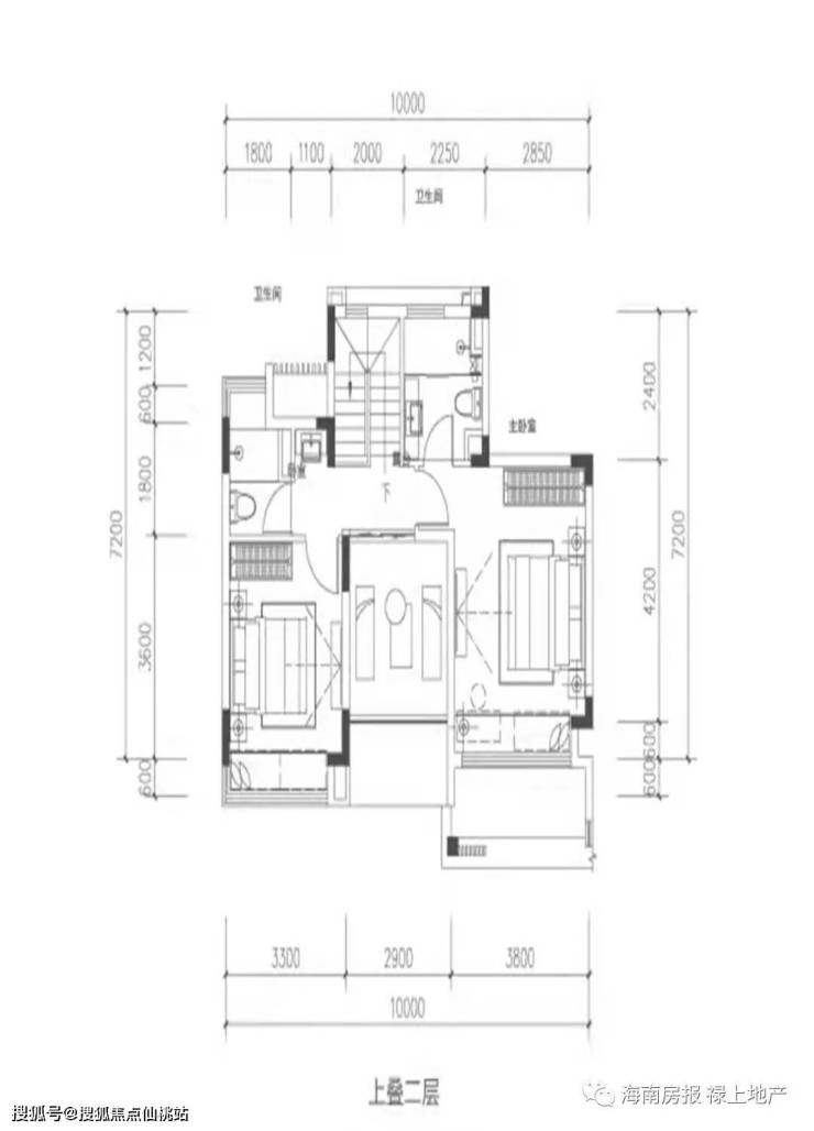
在售详情
在售户型建面:103-139㎡
海南臻园
售楼处电话:400-100-1299转5888
网上售楼中心〢欢迎来电咨询〢1v1销售专业讲解
声明:本文由入驻焦点开放平台的作者撰写,除焦点官方账号外,观点仅代表作者本人,不代表焦点立场。
