三亚传媒中心3号楼售楼处电话→三亚传媒中心3号楼官方首页网站→百度认证→户型图-在售房源-楼盘详情-容积率-备案价@官方权威发布
扫描到手机,新闻随时看
扫一扫,用手机看文章
更加方便分享给朋友
三亚传媒中心3号楼
售楼处电话400-688-0252【售楼中心】
24小时热线◆温馨提示:看房需提前预约
售楼处电话400-688-0252〢【售楼中心】
◆在售房源户型价格详询售楼处〢一对一服务
售楼处电话400-688-0252〢【售楼中心】
售楼处销售1v1专业讲解〢24小时热线
〢〢〢〢〢〢〢〢〢〢〢〢〢〢〢〢〢〢〢
【在售产品—3#楼百变空间】
C户型——66.46㎡
B户型——70.29㎡
A户型——113.17㎡
【在售产品—2#楼云端叠墅】
C户型——43.68/43.70㎡
B户型——106.12㎡
A户型——118.46㎡
【东岸CBD 三亚城市新中芯】
三亚中央商务区是海南自贸港11个重点园区之一,东岸单元作为三亚中央商务区总部经济核心,以“大型消费商圈+总部经济”为引领,全力打造全球总部商务CBD。
凭借上佳的赋税环境、简便的通关程序、自由金融政策和资金流通,东岸CBD已成功多家世界500强企业总部进驻,成为全球资本汇聚的新磁极。
【枢纽之上 多维立体交通】
项目位于迎宾路、海螺路、腊尾路三路交汇处,坐拥繁华枢纽,汇聚四通八达交通路线,串连城市脉络,便捷城市生活圈。
• 距离荔枝沟互通约3公里;
• 距离三亚湾约5公里;
• 距离三亚动车站约6公里;
• 距离凤凰机场约14公里。
【天然氧吧 毗邻千亩湿地公园】
项目毗邻东岸千亩湿地公园,享受大自然天然氧吧。繁华之中,邻水而居,景致在旁,长青乔木,应时花草,感受在城市繁华之外,动态自然中。
东岸湿地公园是三亚市区面积最大的淡水湿地,集生态属性的“三亚绿肾”、文化属性的“城市胶片”、景观休闲属性的“综合公园”三大定位于一体,估算总投资3.2亿元。
【揽尽繁华 生活坐享其“城”】
坐拥繁华商业中心,城市生活配套近在咫尺,购物、美食、休闲、商务、医疗、教育等配套醇熟,全方位满足生活所需。
项目自带6981㎡商业配套,精品主题餐厅、精品零售、生活美学、文创体验等,下楼即享都会繁华。
<繁华商业> 阳光金融广场、青春颂、金润阳光、蓝海国际、三亚免税店......
<健康医院>三亚市妇幼保健院、人民医院、农垦医院、三亚市中医院等“三甲医院”......
<文化教育>琼大双语幼儿园、荔枝沟小学、丰和学校、三亚一中、琼州学院、三亚理工学院、三亚热带海洋学院.....
<农贸市场>荔枝沟路南新农贸市场、乐天城购物中心、东岸农贸市场、鸿港批发市场......
【项目概述】
开 发 商 :三亚允达置业有限公司
占地面积:约3.3万㎡
建筑面积:约16万㎡
容 积 率 :3.6
绿 化 率 :35.65%
停 车 位 :1219个(地上200个/地下1019个)
商业配套:约6981㎡商业
产业规划: 2#、3#楼规划中小企业孵化基地
可售楼栋:3#楼(在售)、2#楼(在售)
在售面积:约66-113㎡百变空间(3#楼)
约44-118㎡云端叠墅(2#楼)
交付标准:硬装交付
交付时间:2024年6月-9月
3#楼户型鉴赏--百变空间
C户型约66.46㎡
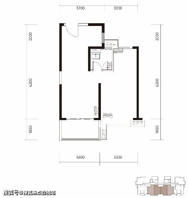
3#楼户型鉴赏--百变空间
B户型约70.29㎡
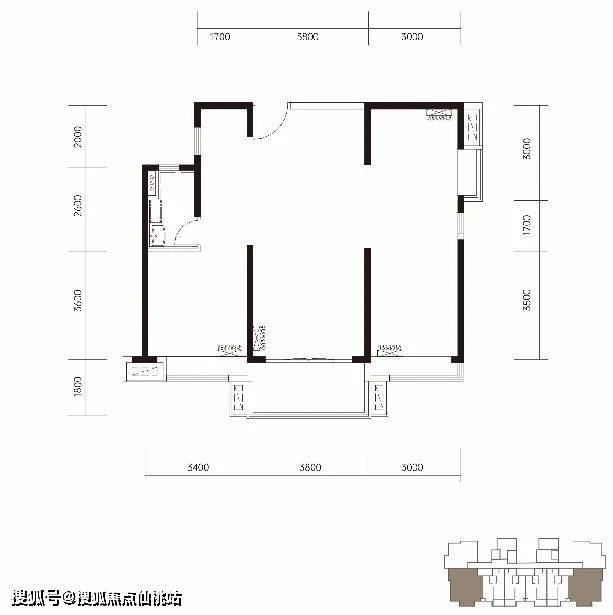
3#楼户型鉴赏--百变空间
A户型约113.17㎡
2#楼户型鉴赏--云端叠墅
C户型约43.68/43.70㎡
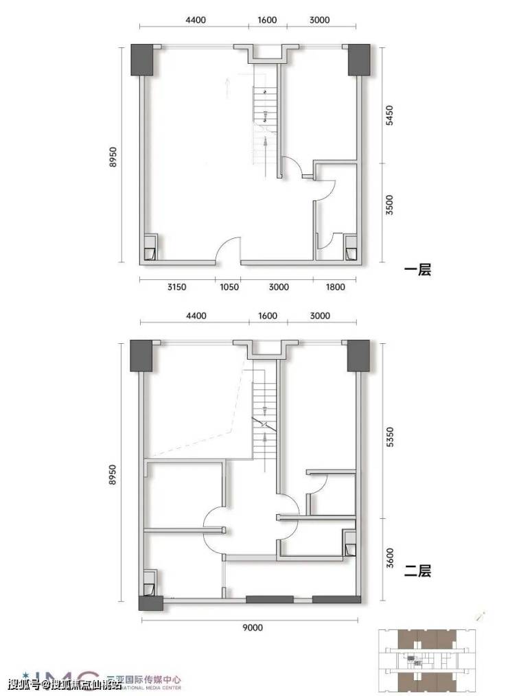
2#楼户型鉴赏--云端叠墅
B户型约106.12㎡
2#楼户型鉴赏--云端叠墅
A户型约118.46㎡
【3#楼价值】
1. 均带户外露台:每户均带户外露台,空间延伸运用更加自由,美景自然延入,;
2. 户型通透方正:3梯8户,单边廊设计,户户通透,采光通风效果极佳;
3. 共享花园阳台:约30-70㎡共享花园阳台,休闲天地,专属活动空间,工作之余放松身心;
4. 小户型低总价:建面约66-70㎡小户型,具有低总价优势,可置业三亚中央商务区。
【2#楼价值】
1. 买一层享两层:约5.4米阔绰挑高,奢享双层空间,超性价比;
2. 入驻舒适度高:6梯12户,约等于1梯2户,入驻舒适度高;
3. 小户型低总价:建面约44㎡小户型,具有低总价优势。
【项目价值】
1. 硬装 准现房:赠送硬装交付,省时省力,准现房,2024年6-9月交付;
2. 社区园区配套:围合式设计,具有独立社区园林,自带双泳池,儿童娱乐、休闲、健康设施;
3. 自带商业配套:拥有6981㎡商业配套,即享一站式商业便捷服务。
三亚传媒中心3号楼
楼售楼处电话400-688-0252【售楼中心】
24小时热线◆温馨提示:看房需提前预约
售楼处电话400-688-0252〢【售楼中心】
◆在售房源户型价格详询售楼处〢一对一服务
售楼处电话400-688-0252〢【售楼中心】
售楼处销售1v1专业讲解〢24小时热线
〢〢〢〢〢〢〢〢〢〢〢〢〢〢〢〢〢〢〢
声明:本文由入驻焦点开放平台的作者撰写,除焦点官方账号外,观点仅代表作者本人,不代表焦点立场。
