新房热搜TOP1天正三亚湾壹号官方售楼处发布→三亚湾壹号售楼处电话→三亚湾壹号售楼中心→24小时电话→楼盘详情→小区环境→房价户型→好房热搜NO1
扫描到手机,新闻随时看
扫一扫,用手机看文章
更加方便分享给朋友
天正三亚湾壹号售楼处电话:400-996-2822转接6666【预约热线】【营销中心】
天正三亚湾壹号售楼处电话:400-996-2822转接6666 【预约热线】【预约热线】
房价特价信息丨详细解答丨优惠政策丨在售户型图丨项目介绍丨在售房源丨周边配套丨VR看房丨楼盘图丨沙盘图丨位置图丨配套图丨售楼处地址丨足不出户丨销售1V1讲解
免责声明:本文所用信息图片来源于网络,如侵权请联系本网站及时删!
三亚湾,三亚四大核心湾区之一,东起鹿回头,西至天涯海角。海岸线绵延约22公里,拥有亚洲第一椰梦长廊,是三亚开发早、城市资源配套全、商业密度高的度假湾区及老牌富人聚集地,也是全市罕有“国”字号美丽海湾,打造三亚“海上会客厅”。(内容来源:《三亚发布》官微)
天正·三亚湾壹号,步行约10分钟即达椰梦长廊,茶余饭后,近享海岸风光。
【开发商】 :三亚永基房地产开发有限公司
【产权年限】:2024-2094年
【占地面积】:56.52亩
【建筑面积】:12.8万平方米
【容积率】 :2.5
【绿化率】 :40%
【总层高】 :16-17层
【层高】 :3.1米
【总户数】 :600户
【停车位】 :879个
【物业服务】:天正物业
【交房时间】:2026年中旬
三亚第九小学三亚湾校区,三亚市公立小学前列,三亚中学、上外附中(2023年最新三亚市中考各学校平均分排名第一,海棠湾的人大附中居第二)等优质教育资源。
约7公里内,享三亚主城优质医疗配套,三亚哈尔滨医科大学鸿森医院、三亚中心医院、解放军425医院等三甲医院。
1公里范围内:羊栏农贸市场、海之眼市集;
2公里范围内:丽禾MOHO、回辉农贸市场;
5公里范围内:龙兴海鲜广场;
8公里范围内:夏日站商业综合体、红树林度假世界、空港百货、大悦城、亿恒主题夜市。
项目实景拍摄
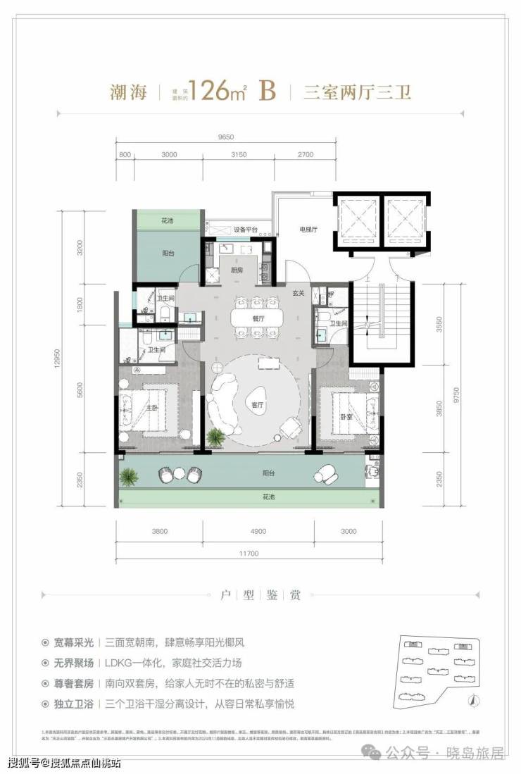
户型面积:
126㎡三室两厅三卫 | 149 ㎡四室两厅三卫
153㎡四室两厅三卫 | 177㎡四室两厅三卫
211 ㎡五室两厅三卫 | 213 ㎡五室两厅三卫
天正三亚湾壹号售楼处电话:400-996-2822转接6666【预约热线】【营销中心】
天正三亚湾壹号售楼处电话:400-996-2822转接6666 【预约热线】【预约热线】
房价特价信息丨详细解答丨优惠政策丨在售户型图丨项目介绍丨在售房源丨周边配套丨VR看房丨楼盘图丨沙盘图丨位置图丨配套图丨售楼处地址丨足不出户丨销售1V1讲解
免责声明:本文所用信息图片来源于网络,如侵权请联系本网站及时删!
声明:本文由入驻焦点开放平台的作者撰写,除焦点官方账号外,观点仅代表作者本人,不代表焦点立场。
