三亚中交绿城蓝香溪郡十二星墅售楼处电话|首页网站-蓝香溪郡营销中心地址-2026.2实时房价-户型图-在售房源-楼盘详情-容积率-备案价@官方权威发布
扫描到手机,新闻随时看
扫一扫,用手机看文章
更加方便分享给朋友
✅三亚中交绿城蓝香溪郡十二星墅售楼处电话:400-996-2822转接6666【预约热线】【营销中心】
✅三亚中交绿城蓝香溪郡十二星墅售楼处电话:400-996-2822转接6666 【预约热线】【预约热线】
房价特价信息丨详细解答丨优惠政策丨在售户型图丨项目介绍丨在售房源丨周边配套丨VR看房丨楼盘图丨沙盘图丨位置图丨配套图丨售楼处地址丨足不出户丨销售1V1讲解
免责声明:本文所用信息图片来源于网络,如侵权请联系本网站及时删!
北纬18° · 仅此12席 · 塔尖人物的时代收藏
项目地址:中国·海南·陵水湾
◎星山海间丨十二星墅为塔尖而来
于北纬18°山海之境,
十二星墅,以星为名,
如同十二颗璀璨星斗,映照陵水山海长卷。
不仅是岛的孤本,更是塔尖人物的精神栖所。
历经万象,更溯内心;
与海同息,与星共语。
蓝香溪郡 · 十二星墅,
天地之间,只为极少数共鸣而生。
◎ 高端品质商墅|时代塔尖资产典范
十二星墅,坐落于蓝香溪郡千亩大盘核心地段,作为项目内唯一商墅组团,仅规划12席独栋藏品。依托北纬18°黄金旅居带、陵水“一河两岸”更新主轴及城市醇熟配套,十二星墅以不可复制的资源、地段与形态,为中国高净值人群呈现一处可收藏、可传承的时代资产。
【空间数据】
• 总栋数:仅12栋
• 建筑面积:约270㎡–383㎡
• 产品形态:低密独栋商墅
• 层数:地上2层
• 使用功能:办公 / 会所 / 展陈 / 旅居多元用途
• 交付标准:毛坯交付
【核心亮点】
◎ 稀贵封面:仅此十二席,塔尖人物专属
在城市土地集约化趋势下,以“不做增量”的克制姿态,十二星墅仅献十二席,给予少数人真正意义上的空间主权,成为时代背景下的资产孤本。
◎ 地段孤本:大三亚·陵水芯·北纬18°黄金旅居轴心
在海南“三极一带一区”区域协调发展新格局中,陵水属于大三亚经济圈次“中心”地带,铁、陆、空三维交通的通达条件较好。同时为海南东南部旅游的重要枢纽,坐拥118公里海岸线和“三湾三岛两湖一山一水”,旅游资源丰富。
到环岛高铁陵水站距离约3KM
到三亚凤凰国际机场距离约81KM
到三亚市中心距离约62KM
🛍到海棠湾免税店距离约45KM
十二星墅位于陵水主城核芯、城市更新重点区域,依山傍水,邻河望海,占据大盘内部景观资源最优位置,地段价值与生态资源叠加,稀贵属性不言而喻。
◎ 11平方公里 热带山海全时颐居地
十二星墅,集萃陵水河、大溪岭、椰子岛等原生生态资源,坐享主城医院、学校、商业、文体场馆等全维醇熟配套,繁华配套与山海资源兼备,呈现一处顶配地段价值的理想藏品,为塔尖风云人物而来。
医疗:陵水人民医院(4.8公里)、陵水中医院/山东中医药大学附属医院海南医院新院区(2.7公里)、陵水妇幼保健院(2.7公里)、青岛大学附属医院海南分院(13公里)、301急救中心绿色通道
教育:陵水中学(2.4公里)、陵水民族中学(3.3公里)、中山小学(2.7公里)、北斗小学(3.8公里)、陵水实验小学(2.1公里)、中央民族大学附属中学(陵水分校)(5.5公里)、顺湖中学(4.4公里)
商业:老城商业街(2公里)、海韵广场(2公里)、和平农贸市场(2公里)、滨河商街(2公里)
休闲:陵河湿地公园(2.3公里)、大溪岭公园(0.3公里)、陵水展览馆(2.4公里)、体育馆(2.3公里)、图书馆(2.5公里)、文化体育广场(2公里)、国家羽毛球队陵水训练基地(2.7公里)、“五馆一中心”(在建)(4.8公里)
◎ 隐奢美学:现代极简,气度自现
融合大面积玻璃幕墙与流畅金属线条,呈现国际化“隐奢”立面语言,以细腻肌理与轻奢色彩共塑建筑质感,成就当代山海封面作品。
◎ 双层格局:高阶生活场景 精准承载
地上双层设计,首层连接庭院,打造可私宴、可会客的多功能场域;二层为主卧套房、衣帽间与星空露台,兼顾动静分区、私密性与尊荣感。
◎ 场景自由:旅居办公皆可,自定义未来可能
从休闲度假、商务办公,到圈层社交、艺术展陈,十二星墅突破传统商墅边界,既可作海岛行宫,也可定制为企业会所或文化体验空间,满足高净值人群多维生活方式的个性化需求。
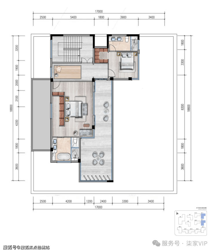
—[十二星墅户型鉴赏]—
◎ 01 户型
约270-272㎡ 四房两厅五卫

◎ 02户型
约275㎡四房两厅五卫


◎ 03 户型
约283㎡四房两厅五卫

◎ 04户型
约268-282㎡四房两厅五卫

✅三亚中交绿城蓝香溪郡十二星墅售楼处电话:400-996-2822转接6666【预约热线】【营销中心】
✅三亚中交绿城蓝香溪郡十二星墅售楼处电话:400-996-2822转接6666 【预约热线】【预约热线】
房价特价信息丨详细解答丨优惠政策丨在售户型图丨项目介绍丨在售房源丨周边配套丨VR看房丨楼盘图丨沙盘图丨位置图丨配套图丨售楼处地址丨足不出户丨销售1V1讲解
免责声明:本文所用信息图片来源于网络,如侵权请联系本网站及时删!
声明:本文由入驻焦点开放平台的作者撰写,除焦点官方账号外,观点仅代表作者本人,不代表焦点立场。
