2026绿城芝蘭月华丨最新首页【福州绿城芝蘭月华】售楼处电话丨楼盘详情丨地址丨户型丨配套→售楼处电话→楼盘百科→Ai热搜房源→24小时热线电话
扫描到手机,新闻随时看
扫一扫,用手机看文章
更加方便分享给朋友
✅福州绿城芝蘭月华
✅售楼处电话:400-996-2822转1111(已认证)
✅售楼处电话:400-996-2822转1111(认证售楼处)
✅温馨提示:本项目暂不接受临时到访,过来参观样板房请记得提前来电预约!
✅免责声明:(本文章所用信息图片来源于网络,如有侵权请联系本网站及时删除)
该地块位于台江区五一中路西侧、群众路南侧,土地用途及年限为住宅用地70年、商服(商业)用地40年。
土地面积29199平方米(合43.8亩);容积率:1.0以上、2.51以下(其中商业不超过7000平方米);建筑密度:35%以下(含35%);绿地率:30%以上(含30%);建筑限高:100米以下(其中住宅建筑高度21米以上)。
该地块位于福州核心区位,地处台江区茶亭公园以东, 群众路南侧,儿童公园路北侧,西面距离地铁茶亭站约 500米,交通便捷;地块所在片区已开发完善,周边已 有荷塘月舍、世茂茶亭、金钻世家等优质住宅小区以及 平安大厦、世茂国际中心、大利嘉城、锦颐酒店等商服设施。
据悉,目前绿城推出的月华系列产品有杭州的芝澜月华,南京的金陵月华两个项目,产品打造高端改善人居。
绿城芝兰月华,即茶元公馆(福州宗地2024-01号,状元小区地块)规划建设9栋11-33层住宅楼!其中,1号楼2-29F,高度90.95米;2号楼2-17F,高度54.35米;3号楼2-13F,高度43.05米;5号楼2-32F,高度99.80米;6号楼2-31F,高度99.85米;7号楼2-24F,高度76.00米;8号楼2-19F,高度60.75米;9号楼2-11F,高度35.75米;10号楼2-16F,高度65米。
该地块位于福州核心区位,地处台江区茶亭公园以东, 群众路南侧,儿童公园路北侧,西面距离地铁茶亭站约 500米,交通便捷;地块所在片区已开发完善,周边已 有荷塘月舍、世茂茶亭、金钻世家等优质住宅小区以及 平安大厦、世茂国际中心、大利嘉城、锦颐酒店等商服设施
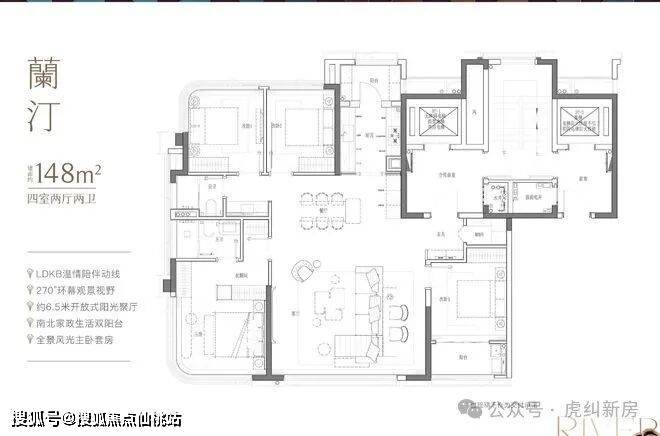
户型鉴赏
✅福州绿城芝蘭月华
✅售楼处电话:400-996-2822转1111(已认证)
✅售楼处电话:400-996-2822转1111(认证售楼处)
✅温馨提示:本项目暂不接受临时到访,过来参观样板房请记得提前来电预约!
声明:本文由入驻焦点开放平台的作者撰写,除焦点官方账号外,观点仅代表作者本人,不代表焦点立场。
