新房热搜TOP1三亚和城锦熙官方售楼处发布→和城锦熙售楼处电话→和城锦熙售楼中心→24小时电话→楼盘详情→小区环境→房价户型→好房热搜NO1
扫描到手机,新闻随时看
扫一扫,用手机看文章
更加方便分享给朋友
三亚和城锦熙售楼处电话:400-996-2822转接6666【预约热线】【营销中心】
三亚和城锦熙售楼处电话:400-996-2822转接6666 【预约热线】【预约热线】
房价特价信息丨详细解答丨优惠政策丨在售户型图丨项目介绍丨在售房源丨周边配套丨VR看房丨楼盘图丨沙盘图丨位置图丨配套图丨售楼处地址丨足不出户丨销售1V1讲解
免责声明:本文所用信息图片来源于网络,如侵权请联系本网站及时删!
项目概况
[项目地址]三亚东岸CBD
[总建筑⾯积]约8万方
[总用地面积]约77.16亩
[ 容 积 率 ]1.2
[ 绿 化 率 ]40%
[建筑密度]18%
[产权年限]70年
[面积区间]建面约500㎡藏墅|建面约60-142㎡品质住宅
[产品业态]定制藏墅/品质住宅/奢阔大平层
项目产品
【定制藏墅:一个家族的图腾与徽章】
建面约500㎡定制级藏墅,承载着时代人物所向往的巅峰大境,二亩天地按需定制场域,创享尊崇天地。以世界格局,东方血统,造就“修身、齐家、平天下”的世家威仪。总裁会客厅:云聚一个圈层的生意与生活。企业博物馆:激活一个企业的海岛战略与商业版图私密生活墅:自贸时代大人物的阶层排场
【阔境小高层-墅区里的理想居所】
建面约60-142多元灵动空间,对应更⾼层级的品味、需求、审美,对精装美学、场景、功能进⾏全⽅位升级,构建自贸菁英的理想生活之所,演绎高雅品位生活方式。
楼栋落位图
楼层平面图
户型鉴赏奢阔小高层——自贸菁英的理想居所
【A-2 建面约60㎡,实际使用面积77㎡, 两室两厅一卫】

【B-2 建面约84㎡,实际使用面积98㎡, 两室两厅一卫】

【B3 建面约89㎡,实际使用面积113㎡, 三室两厅两卫】
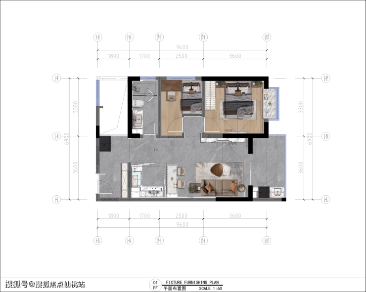
【A-2+B-2 大平层 建面约142㎡】方案一 四室两厅两卫
【A-2+B-2 大平层 建面约142㎡】方案二 四室两厅两卫
三亚和城锦熙售楼处电话:400-996-2822转接6666【预约热线】【营销中心】
三亚和城锦熙售楼处电话:400-996-2822转接6666 【预约热线】【预约热线】
房价特价信息丨详细解答丨优惠政策丨在售户型图丨项目介绍丨在售房源丨周边配套丨VR看房丨楼盘图丨沙盘图丨位置图丨配套图丨售楼处地址丨足不出户丨销售1V1讲解
免责声明:本文所用信息图片来源于网络,如侵权请联系本网站及时删!
声明:本文由入驻焦点开放平台的作者撰写,除焦点官方账号外,观点仅代表作者本人,不代表焦点立场。
