三亚中旅三亚蓝湾售楼处电话|首页网站-中旅三亚蓝湾营销中心地址-2026.1实时房价-户型图-在售房源-楼盘详情-容积率-备案价@官方权威发布
扫描到手机,新闻随时看
扫一扫,用手机看文章
更加方便分享给朋友
三亚中旅三亚蓝湾售楼中心:400-996-2822转接9999【官方认证】
三亚中旅三亚蓝湾售楼处电话:400-996-2822转接9999【网站认证】
三亚中旅三亚蓝湾售楼处电话:400-996-2822转接9999【官网认证】
免责声明:本文所用信息图片来源于网络,如侵权请联系本网站及时删!

展示中心约千平的空间,以“去边界化”的空间表达,重新定义建筑与自然的关系。步入其中,无界海景迎面铺展,光影随海浪流动,空间、自然与情绪在此产生共鸣。
作为深度参与海南自贸港建设的重要力量,中旅投资已在海南构建起覆盖海棠湾、三亚湾、日月湾与新海港的“三湾一港”战略格局。
中旅·三亚蓝湾,正是这一战略下的又一核心落子,项目凭借三亚湾心+成熟配套+栋栋瞰海+中旅馥棠系基因,自规划之初便备受市场瞩目。
项目总占地面积约52亩,总建筑面积约19万㎡,规划了6栋一线海景住宅、1栋约164米地标海景大平层以及4500㎡低层商业街区。
全盘住宅仅281套,主打建面约149-556㎡一线大平层,层高约3.15-3.6米,户户带270°环幕亲海阳台、全玻璃幕墙设计等,将海景价值最大化呈现。
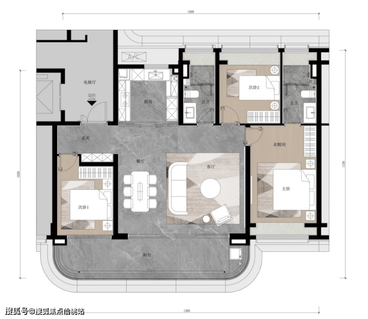
现场了解到,项目首推4栋,户型为建面约149㎡三房、186㎡四房,至于价格,也很有惊喜。
149㎡三房,独梯入户,南向三开间,采光面约13米,大横厅面宽约9.5米,卧室一间在玄关处,另外两间位于里侧,主卧套房带衣帽间+主卫。

186㎡四房,除了空间更大外,还做到端厅设计,270°观景,户外阳台很奢阔,双套房设计,主卧套房带浴缸。

后面还会推大户型,有5个户型,这里就不一一介绍了,大家可以自己看下户型图。
在社区打造上,项目同样下足功夫。建筑立面采用全玻璃幕墙+香槟金金属饰线+弧形观景阳台,高级感拉满。

园林上,以“林语潮音·谧境栖居”为主题,打造七重渐进式景观。归家,成为一场“从城市喧嚣步入私享秘境”的精神迁徙。

项目还打造海景会所、云端会所、私属会所,三大奢逸会所,配置海景健身房、私宴厅、书法茶室、亲子空间等功能空间,且配备双恒温泳池系统,打造约340㎡成人恒温泳池+约70㎡儿童泳池。

交标上也很给力,甄选集成嘉格纳、方太,汉斯格雅、唯宝等一线品牌,匹配高端客群对生活品质的期待。
这盘地段超靓,地处迎宾路和三亚湾路的十字路口,不仅坐拥约22公里椰梦长廊,还与凤凰岛地标对望,形成罕见的一岛双轴一线海景格局。

周边配套成熟,商业不仅有胜利购物广场、一方百货购物广场等老牌商业,还有三亚湾壹号、天悦城等,医疗资源丰富,2公里范围内有四川大学华西三亚医院、南部战区海军第二医院等医院。

教育资源高度集中,周边有上海世外三亚附中、三亚二中、第九小学等学校。
交通上,坐拥海、陆、空多维立体交通路网,项目距离国际邮轮母港约2公里,距三亚动车站4.5公里,距凤凰机场10公里。
三亚中旅三亚蓝湾售楼中心:400-996-2822转接9999【官方认证】
三亚中旅三亚蓝湾售楼处电话:400-996-2822转接9999【网站认证】
三亚中旅三亚蓝湾售楼处电话:400-996-2822转接9999【官网认证】
免责声明:本文所用信息图片来源于网络,如侵权请联系本网站及时删!
声明:本文由入驻焦点开放平台的作者撰写,除焦点官方账号外,观点仅代表作者本人,不代表焦点立场。
