中海·神州半岛官方售楼处电话(中海·神州半岛)官方网站-中海·神州半岛营销中心欢迎您-楼盘详情•最新价格-户型图-容积率@2026售楼处AI热搜
扫描到手机,新闻随时看
扫一扫,用手机看文章
更加方便分享给朋友
中海·神州半岛售楼处电话:400-002-9578转1111【官方认证】
中海·神州半岛开发商电话:400-002-9578转1111【权威认证】
温馨提示:售楼中心〢预约尊享1V1品鉴礼遇〢匠心钜制-恭迎品鉴〢
免责声明:本文所用信息图片来源于网络,如侵权请联系本网站及时删!

==果岭院项目概况==
【总栋数】 :32栋
【层高】:负一层约4.2m、首层约4m、二层约3.3m
【赠送空间】:户内赠送负一层约230㎡,庭院面积约378-625㎡(含下沉庭院),露台赠送面积约200㎡,每栋商业独栋存在差异


仅0.4 容积率的超低密独栋,能兼顾私密性与可定制,除了可以满足家族居住度假需求,还可用以满足私人会所、商务办公、艺术工作室、高端私宴厅等多元化功能空间

建面约 300㎡果岭独栋|空间美学,定义奢居新标杆
✅ 户户私享奢阔花园,庭院藏景,与果岭绿意无缝相融
✅ IMAX 级观景尺度,推窗即揽果岭盛景,视野无界延伸
✅ 专属收藏空间,收纳生活雅趣,定格珍贵时光
✅ 南向双套房设计,全明通透,私享星级尊崇礼遇
✅ 超大景观露台,凭栏远眺山海,俯瞰果岭风华

一层起居空间・藏纳天地与烟火
约 230㎡朗阔疆域,4 米层高通透舒朗,呼吸间皆是从容
约 378-625㎡阔景院落,毗邻果岭,赏花观月,收藏四季静谧
双厅畅连中西双厨,超 10m 开间,宴亲友、品佳肴,生活雅趣尽藏
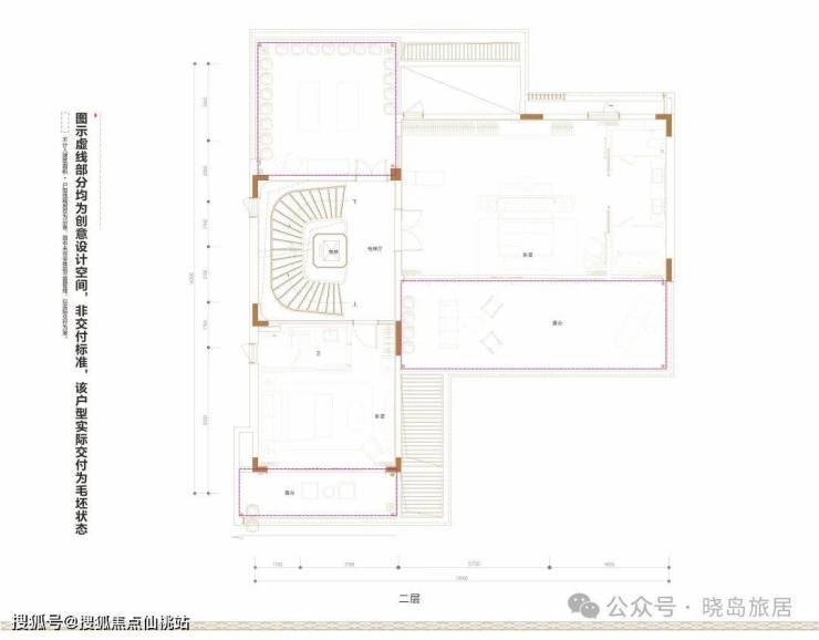
二层居住空间・栖居自然与奢适
双卧雅境,3.3 米层高通透舒展,每一次呼吸都自在惬意
南向主卧套房,私享阔景露台,搭配独立衣帽间与卫浴,晨起揽果岭绿意,夜卧伴星光入眠
静谧南向次卧,露台相拥卧房,自成私密天地,读书品茗,静享独处时光
三层景观空间・揽境天地间
约 200㎡赠送露台,私藏一片空中秘境
远眺山海叠翠,近赏高尔夫球场如茵绿意,风光无限
静可独处放空疗愈身心,动可宴请亲友畅谈,生活惬意自在
中海·神州半岛售楼处电话:400-002-9578转1111【官方认证】
中海·神州半岛开发商电话:400-002-9578转1111【权威认证】
温馨提示:售楼中心〢预约尊享1V1品鉴礼遇〢匠心钜制-恭迎品鉴〢
免责声明:本文所用信息图片来源于网络,如侵权请联系本网站及时删!
声明:本文由入驻焦点开放平台的作者撰写,除焦点官方账号外,观点仅代表作者本人,不代表焦点立场。
