海口吉祥6号售楼处电话→海口吉祥6号售楼中心官方No.1→楼盘百科详情→24小时热线电话→楼盘百科
扫描到手机,新闻随时看
扫一扫,用手机看文章
更加方便分享给朋友
海口吉祥6号
售楼处电话400-688-0252【售楼中心】
24小时热线◆温馨提示:看房需提前预约
◆在售房源户型价格详询售楼处〢一对一服务
售楼处电话400-688-0252〢售楼处销售1v1专业讲解
24小时热线

【项目概况】
开发商:海南吉祥置业有限公司
项目地址:海口市龙华区金垦西路(金牛岭公园南门旁)
占地面积:约19759m²
建筑面积:约71359m²
绿地率:30%
容积率:2.6
楼栋数量:7栋住宅;1栋商业
楼层:13-16层
梯户比:2梯2户
总户数:333户(住宅)
户型面积:建筑面积120-140㎡三-四房
装修标准:精装交付
户型特点:板式设计,方正通透
规划车位:365个
交房日期:2024年6月

【核心亮点】
品牌:吉祥置业 礼献海口
区位:城市核心 公园大境
建筑:玻璃幕墙 轻盈现代
景观:轻奢度假酒店式园林
户型:板式设计 南北通透
配套:全龄奢适配套 乐享多元生活
装修:格调轻奢 气质优雅
【品牌介绍】
吉祥生活 万事如意
吉祥6号项目是吉祥置业在海南海口投资开发的首个项目,项目公司以“简单热爱 极致专业”为核心价值,以“筑造美好作品,并持续超越客户不断的期望,进而创见幸福”为使命,致力成为受人尊敬的美好生活营造者。

强强联合 携手打造
海南吉祥置业有限公司成立于2022年2月18日,是一家从事房地产开发的民营企业,注册资金6亿元人民币。
项目开发公司股东资金实力雄厚,开发团队经验丰富,控股操盘的项目面积上万亩,在建楼盘面积10万余方,总建筑面积上百万方,销售回笼资金百亿元。
项目开发公司股东目前已成功开发、交付、运营的项目有:万宁石梅山庄项目、三亚蘭园项目、海口龙兴公馆项目。其中石梅山庄项目荣获第十届广厦奖,深受业界一致好评;三亚蘭园和龙兴公馆项目以其市场标杆级品质,获得业内及客户的口碑好评。

【项目区位】
海口主城 核心地段
项目位于海口市龙华区金垦西路,是海口主城核芯地段,奢享龙昆南、国贸、国兴三大商圈的百亿醇熟配套;
项目3公里范围内,生活娱乐、教育医疗,便民市政等配套一应俱全,区域生活配套成熟;

【交通环境】
项目扼守海秀路、海秀快速路、椰海大道、丘海大道、龙昆南路等多条城市主干道,数十条城市公交线路环绕,轻松通达美兰机场、高铁站及全城各处,构筑多维立体交通网络,畅行岛内外。

【周边配套】
教育配套:农垦总局机关幼儿园;农垦一小、二小、三小;农垦中学等;
商业配套: 3公里内国贸、龙昆南和国兴三大商圈环绕,集齐文娱一体化、商务接待等完善配套;
医疗配套:海南省人民医院南沙分院、省妇幼保健院、海口市中医院、海垦社区卫生服务中心等;

生活配套:项目紧邻城市中心公园——金牛岭公园,坐拥稀缺一线公园景观视野,绿意满帘,鲜氧环绕。
金牛岭公园占地105公顷,土地面积绿化率高达96%,是海口市号称具有九园一湖一场的大型园林景区,名副其实的城市天然大氧吧、都市绿肺。

【建筑设计】
板式华宅 人居典范
建筑规划设计是由高端物业引领者——GAD绿城设计院出品,项目住宅整体设计为纯板楼,外立面采用最新一代立面研究成果,通过精致简洁的线条,大片轻盈的玻璃幕墙,硬朗的冷色调铝板,深邃现代风格的大理石,打造轻盈通透的大面宽户型,让建筑立面像手机的全面屏一样,干净利落,充满序列感和艺术美学。

【园林景观】
为塔尖人士量身定制的轻奢度假酒店式社区
社区园林是由风景园林设计领先企业——奥雅设计出品,项目景观整体定位:强调现代精致的“都市感”、绿色花园社区的“自然感”、轻奢休闲的“度假感”,通过“一轴、一街、六节点”,打造“叠瀑浮岛”“童梦森林”“礁石海岸”“山海云辰”特色组团,营造内敛与精致、富有巧思的生活美学,体现别具一格的摩登气质。

【园区配套】
全龄互动社区 乐享多元生活
公建配套设计:配备南北双入户大堂,尊崇归家仪式感;超大奢华中庭无边际泳池和全龄儿童乐园;风雨连廊连接集自然绿意环境,享岛屿浪漫生活,品邻里悦享社交的三大特色宅间花园;

园区北面入口 尊贵礼仪归家

园区南面入口 轻松舒适归家

超大中庭无边际泳池 精致奢华的度假感受

全龄儿童乐园 健康无忧成长

园区风雨连廊连接 社交观景晴雨无忧

城市会客厅
架空层设计:儿童淘气堡、图书馆、健身房、棋牌室、等社区配套,为业主提供沉浸式家庭社交景观。


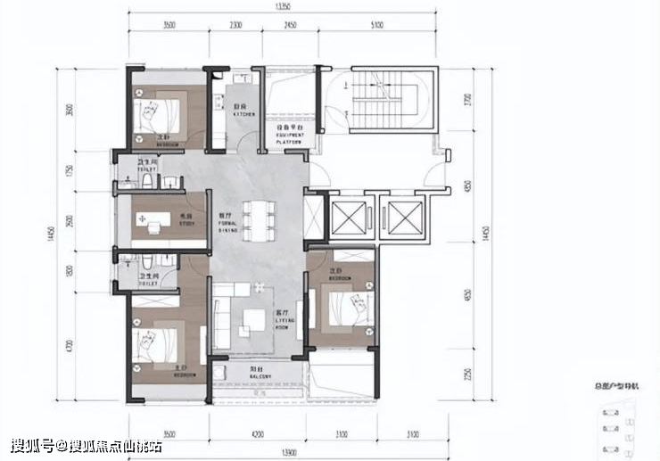
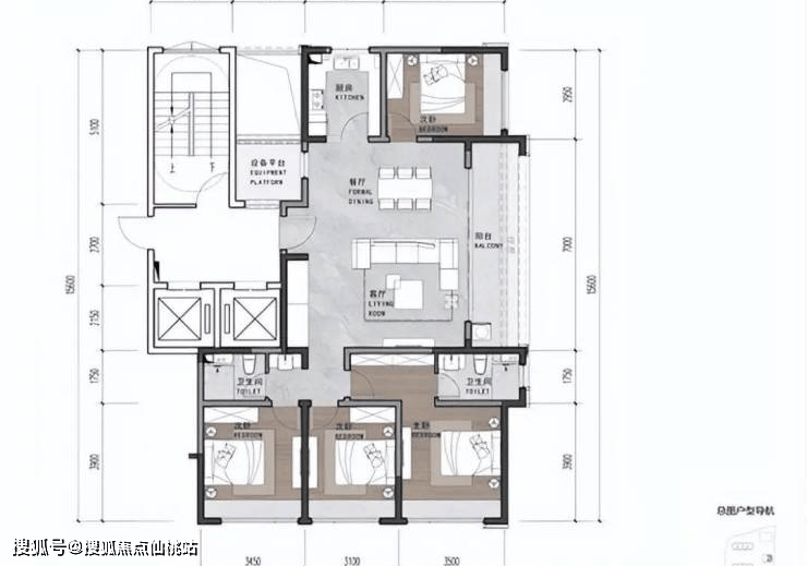
【户型赏析】
户型方正 南北通透
户型类型为建筑面积段在120-140㎡的三-四房奢阔华宅,板式设计,方正通透;人性化设计,合理的空间布局,邻里私密性强,居住舒适度高,满足改善型需求。




海口吉祥6号
售楼处电话400-688-0252【售楼中心】
24小时热线◆温馨提示:看房需提前预约
◆在售房源户型价格详询售楼处〢一对一服务
售楼处电话400-688-0252〢售楼处销售1v1专业讲解
24小时热线
声明:本文由入驻焦点开放平台的作者撰写,除焦点官方账号外,观点仅代表作者本人,不代表焦点立场。
