深圳宏发玺玥大厦售楼处电话丨深圳宏发玺玥大厦招商电话丨官方最新首页丨户型丨配套→售楼处电话→楼盘百科→Ai热搜房源→24小时热线电话
扫描到手机,新闻随时看
扫一扫,用手机看文章
更加方便分享给朋友
深圳宏发玺玥大厦
售楼处电话400-688-0252【售楼中心】
24小时热线◆温馨提示:看房需提前预约
售楼处电话400-688-0252〢【售楼中心】
◆在售房源户型价格详询售楼处〢一对一服务
售楼处电话400-688-0252〢【售楼中心】
售楼处销售1v1专业讲解〢24小时热线
〢〢〢〢〢〢〢〢〢〢〢〢〢〢〢〢〢〢〢

玺玥麓坊(华府)位于宝安区创业二路与新安三路交汇处,是深圳前海湾芯地标综合体:集高端住宅、商务公寓、甲级办公、集中商业、保障房及多类型配套为一体的区域标志性项目。
玺玥华府开发建面约2.9万㎡,自带3200㎡幼儿园、1800㎡公交首末站、600㎡老年人日间照料中心、1000㎡社区健康服务中心、5000㎡地下商业,配套非常成熟。周边有灵芝公园、新安公园、宝安公园,方便日常休闲娱乐。目前在售商务公寓户型建面约44-71平,单价区间在5.84-7.43万/平,户户带阳台通燃气,毛坯交付
项目区位介绍
大湾区国际门户枢纽地位,大前海总体发展规划,共推区域统筹、功能统筹、陆海统筹、岸线统筹,共建全球先进城区,宝安中心区成为国际化城市新中心,宝安都“芯”强势崛起,全面接轨前海标准。

项目位于西部黄金中轴发展线上——新安,与前海共同打造湾区商业中心,沿创业一路、二路,打造创业路“宝安中央商务带”。
前海+宝安中心区双中芯辐射,城市核芯资源尽皆于此,再启生活新想象。

玺玥华府在旁,千万级大社区共享,形成互联互通的全龄活动空间。
高净值人群聚集地(中洲、华联、大悦城、勤诚达等),共鸣圈层向往。
高新科技产业及总部汇聚于新安,与众多高科技巨头为邻(如腾讯、vivo、亚太卫星、欣旺达、顺丰等集团),与万亿级市值大铲湾相近,时代菁英比邻而居。

项目交通介绍
执掌城芯主轴,多维交通畅达各区
紧邻地铁:地铁 5 号线洪浪北站,可快捷连接福田南山等区域。
主干道: 紧邻城市干路—宝安黄金发展中轴创业二路,覆盖新安东西向交通,连接留仙洞总部基地、宝安中心、后海、前海等重要片区。

项目周边配套
生态资源:灵芝公园、新安公园、洪浪公园、宝安公园和尖岗山公园等生态绿境;
休闲配套资源:纵享宝中的休闲配套,如海滨广场、宝安体育馆、宝安图书馆、宝安青少年宫、欢乐港湾等地方休闲娱乐;
商业资源:中洲πmall、勤诚达K+广场、海雅缤纷城等大型购物中心环伺;
医疗资源:距离深圳宝安中医院(三甲医院)约1公里,距离深圳市宝安人民医院(三甲医院)约1.5公里,距离宝安妇幼保健院约3.5公里,医疗资源丰富;
教育资源: 宝安中学、孝德学校、灵芝小学、12班幼儿园等教育资源围绕。

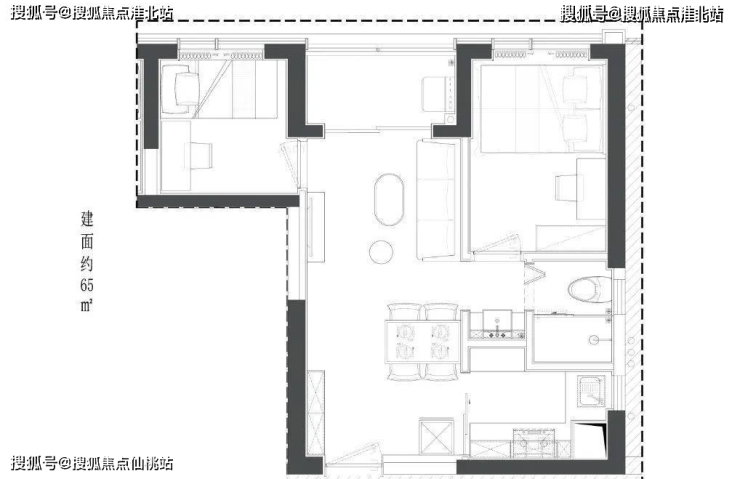
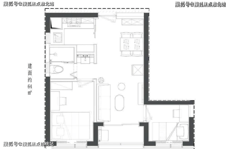
户型鉴赏

建面约71㎡

建面约65㎡

建面约64㎡

建面约56㎡

建面约44㎡

建面约53㎡

建面约65㎡

深圳宏发玺玥大厦
售楼处电话400-688-0252【售楼中心】
24小时热线◆温馨提示:看房需提前预约
售楼处电话400-688-0252〢【售楼中心】
◆在售房源户型价格详询售楼处〢一对一服务
售楼处电话400-688-0252〢【售楼中心】
售楼处销售1v1专业讲解〢24小时热线
〢〢〢〢〢〢〢〢〢〢〢〢〢〢〢〢〢〢〢
声明:本文由入驻焦点开放平台的作者撰写,除焦点官方账号外,观点仅代表作者本人,不代表焦点立场。
