三亚中交国际自贸中心售楼处电话→官方营销中心 →No.1→户型图-在售房源-楼盘详情-容积率-备案价@最新资料
扫描到手机,新闻随时看
扫一扫,用手机看文章
更加方便分享给朋友
三亚中交国际自贸中心
售楼处电话:400一688一0252【售楼中心】
24小时热线◆温馨提示:看房需提前预约
售楼处电话:400一688一0252〢【售楼中心】
◆在售房源户型价格详询售楼处〢一对一服务
售楼处电话:400一688一0252〢【售楼中心】
售楼处销售1v1专业讲解〢24小时热线
〢〢〢〢〢〢〢〢〢〢〢〢〢〢〢〢〢〢〢
【核心价值】
☆万亿央企中国交建 实力铸就新中心
☆荣获美国LEED金和中国绿建二星认证
☆约187米摩天封面 刷新三亚天际线
☆全新“Business+”引领商务4.0
☆企业家公馆——澎湃商务资产领地
☆城市菁英空间——CBD中轴轻资产
☆5A总部办公楼——新商务的制高点
☆漫享商业街区——全能型都市新天地
【项目概况】
开发商:
海南中交总部经济发展有限公司
项目地址:
中国三亚·总部经济及中央商务区(迎宾路)
建筑面积:
总占地39.58亩,总建面约21万㎡
产品类型:
5A甲级总部办公楼、城市菁英空间
企业家公馆、漫享商业街区
容积率:4.5-6.5
绿化率:25%
交付标准:毛坯
在售产品:
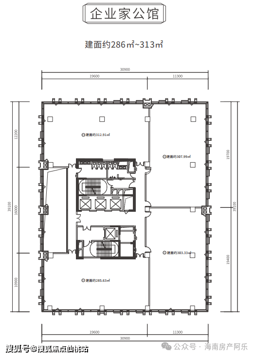
企业家公馆 :建面约286-313㎡
城市菁英空间:建面约45-53㎡
未售产品:
5A甲级总部办公楼:建面约327-387㎡
漫享商业街区:建面约47-1197㎡
【品牌优势】
1、万亿央企中国交建 世界百强
中国交建是全球领先的特大型基础设施综合服务企业,也是全球知名工程承包商、城市综合开发运营商、特色房地产商、基础设施综合投资商、海洋重工与港机装备制造集成商;2022年位居《财富》世界500强第60位,国务院国资委经营业绩考核获“17连A”。
国际先进的“全球知名工程承包商”
国内领先的“城市综合开发运营商”
行业领先的“基础设施综合投资商”
国内知名的“特色房地产商”
国际领先的“海洋重工与港口机械制造集成商”
2、深耕70载 与海南共成长
1952年,中交集团进入海南,深耕70载。至今,中交集团二级单位在琼分子公司31家,在建项目共计850余个,遍及海南19个市县,参与项目超1500项,落地合同额逾千亿元。深度参与、支持和奉献海南经济社会建设,为海南自贸区的建设与发展提供一揽子智慧方案。
3、中交海投 赋能三亚共发展
中交海洋投资控股有限公司是中交集团设立的第一批区域总部、在海南设立的专业实体投资公司,聚焦海南重点领域和中交优势领域,积极投身海南自贸港建设,着力发展基础设施、教育培训、南海资源、邮轮经济、文化旅游与特色地产六大业务板块,在海南投资建设运营项目实现多个“第一”。
在三亚,中交海投全维度深耕,以实际行动践行国策,全方位、多层次、宽领域推动与三亚的深度合作,发挥自身优势,运用企业强项,赋能城市发展,建设了自贸港政策落地第一批总部基地项目—三亚中交国际自贸中心项目,焕新城市新封面。
【区位优势】
1、三亚中央商务区
唯一设在市中心的自贸港重点园区
三亚中央商务区是海南自贸港建设的11个重点园区之一,也是唯一设在市中心的重点园区。其中东岸单元定位为大型综合消费商圈与总部核心区。汇聚诸多央企、国企以及世界500强企业,以总部集群效应,带动三亚市的上下游经济发展,形成虹吸效应,重新定义三亚CBD新中心。
2、自贸港封关在即 优势显现
2025年前海南全岛封关运作在即。据统计,截至目前,三亚总部经济及中央商务区已落地企业2400家,世界500强23家,中国500强19家,涉及现代商贸、金融服务、邮轮游艇、智能制造、跨界投融资、专业事务服务等领域,总部经济集聚效应逐步呈现,紧随而来的是高端商务需求的增长。
3、CBD中轴 定鼎中心主场
项目坐落于三亚中央商务区东岸单元核心地段,毗邻城市中轴迎宾路,雄踞市中心的最核心圈。同享自贸港政策以及园区特殊优惠政策,赋能板块价值不断提升。
4、百亿配套汇聚 拥揽城市繁华
项目周边财税、人社、海旅免税、房产交易中心等政府办公机构,以及医疗、教育、文体、酒店度假、娱乐休闲等配套齐备,商务功能及配套正在逐步完善,未来更将拥享百亿大型商圈,将对片区的营商环境起到带动作用。这里将不仅是三亚总部经济区,也是国际一流的城市旅游、消费、居住中心。

5、多维立体交通 通达商务疆场
门口的迎宾路汇集了6 条公交线路(1 路、7 路、23 路、27 路、35 路、49 路)通达全市各处,交通区位优势十分明显,也是人流触达的必经之路。
【商务产品】
总部基地商务生态链
焕新海南自贸港商务格局
三亚中交国际自贸中心项目是中国交建响应国家发展海南自贸港的战略,第一批落地建设的总部基地项目。未来将带动并吸引中交在海南的分子公司、上下游产业链供应商、战略合作商以及知名品牌企业的进驻,形成总部基地商务生态链,推动海南自贸港商务和经济快速发展。
——5A甲级总部办公楼 摩天商务新封面——
产品面积段:建面约327-387㎡
5A甲级总部办公大楼,楼栋总高187米,目前是三亚海拔最高的地标建筑。近十万方办公面积,汇聚三亚积极引入的央企、国企、外企及知名大品牌的总部基地企业,预计将进驻近百家企业,人流量将达到上万,未来将是三亚乃至整个自贸港的总部经济中心。
美国LEED金级、中国绿建二星的双认证
约13.5米全挑空大堂,彰显企业恢弘气场
约4.4米的层高,难得一见的办公高度
16部鼎配电梯,让日常出行高效且从容
12大科技系统,开启智能办公的新模式
共享商务空间,打破传统办公物理界限
智慧企服平台,协助企业提升管理水平

——城市菁英空间 CBD中轴稀缺轻资产——
产品面积段:建面约45-53㎡
稀缺中轴轻资产,坐享自贸港红利前景
约5.4米高挑空,全能通透且超高使用率
多种户型设计,从容应对多样化使用场景
落位城市中心,轻松进阶中央商务核心圈
——企业家公馆 澎湃商务资产领地——
产品面积段:建面约286-313㎡
内外双公园环绕 繁华静逸同步共享
层间的阳光中庭 花园式休闲新体验
约6米奢阔大堂,尽显商务恢弘气度
精装车库迎宾大堂,礼遇尊贵商务
约20米全景视野,俯瞰三亚CBD风光
阔绰尺度,承载企业家多维度商务需求

——漫享商业街区 全能型都市新天地——
产品面积段:建面约44-1157㎡
比邻未来新商务中心的商业集群
屋顶花园空间,打造天际社交场
一楼底商二、三层商务,灵活多用
大面宽、大进深,商业商办自如切换
社区底商 寰球商务风尚场
产品面积段:建面约44-1157㎡
社区底商为项目自持产品,未来将引进专业招商公司,打造三亚「都市漫步式商务生活美学场」,以商务精英为核心客群,聚集“艺术、生态、时尚、社交”核心要素,引进商业旗舰集群,重新定义三亚都市生活方式。
三亚中交国际自贸中心
售楼处电话:400一688一0252【售楼中心】
24小时热线◆温馨提示:看房需提前预约
售楼处电话:400一688一0252〢【售楼中心】
◆在售房源户型价格详询售楼处〢一对一服务
售楼处电话:400一688一0252〢【售楼中心】
售楼处销售1v1专业讲解〢24小时热线
〢〢〢〢〢〢〢〢〢〢〢〢〢〢〢〢〢〢〢
声明:本文由入驻焦点开放平台的作者撰写,除焦点官方账号外,观点仅代表作者本人,不代表焦点立场。
