杭州市区,地铁口精装稀缺公寓,4.77米LOFT,170W起
扫描到手机,新闻随时看
扫一扫,用手机看文章
更加方便分享给朋友

售 楼 处 热 线 : 4 0 0 - 0 1 8 - 7 9 6 9 接 通 后 输 入 0 0 0
只臻选城市中心落子,是安徽置地不变的企业信条。从钱江新城的凤起钱潮,到城西腹地的翠苑荟,安徽置地步履23载潜心深研,用一座城市的审美与文化,为杭州再启璀璨都会新纪元。

售 楼 处 热 线 : 4 0 0 - 0 1 8 - 7 9 6 9 接 通 后 输 入 0 0 0
【建筑剖面图】

售 楼 处 热 线 : 4 0 0 - 0 1 8 - 7 9 6 9 接 通 后 输 入 0 0 0

文教之心 :杭州高校学府汇集地,“城西情怀”的发源地;
创智之心:阿里巴巴、颐高数码等科创巨头在此诞生,主城区排名前列代CBD聚集地;
生活之心:百米可达汇和城(文一路物美)、大象城,共享黄龙、武林成熟商圈;
便捷之心:2号线学院路站、10号线翠柏路站(在建)双地铁贯通,四横三纵路网,乐享全城资源。
【区位图】

售 楼 处 热 线 : 4 0 0 - 0 1 8 - 7 9 6 9 接 通 后 输 入 0 0 0
【项目配套】
【教育】:翠苑幼儿园、翠苑一小、行知小学、文一街小学、学军小学、钱塘外国语学校、学军中学、杭州第十三中学、浙江工商大学(教工路校区)、浙江财经大学(文华校区)等
【商业】:汇和城、大象城、城西银泰、大悦城等
【交通】:
1.地铁:2号线学院路约800m、地铁10号线(在建)翠柏路站约500米【预计2022年3月开通】;
2.公交:小区四周都有公交站点;
3.快速路:文一路隧道、德胜高架、上塘高架等

区域板块:翠苑文教板块
户型面积:约40-51-61-77-87-105㎡
均价:47000元/平
总价区间:170-400万左右
得房率:约78%
层高:4.77米
物业公司:安徽信联物业服务有限公司
装修程度:精装交付
交付时间:2021年12月底

全城罕见单边廊设计,全南向户型,南北通透;
约4.77m层高,买一层享两层,优质空间利用率;
大面积落地窗,享受约4.2米宽景视野及自然采光;
U型厨房动线流畅,大空间布局,烹饪美食愈享从容;
配备人脸识别、梯控系统、智能门锁等安防系统,保障安全舒适的品质生活;
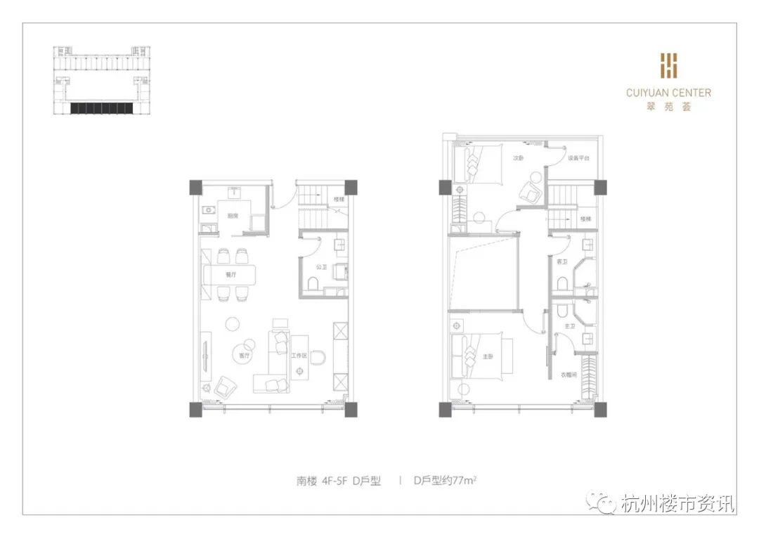
【户型图】

售 楼 处 热 线 : 4 0 0 - 0 1 8 - 7 9 6 9 接 通 后 输 入 0 0 0

售 楼 处 热 线 : 4 0 0 - 0 1 8 - 7 9 6 9 接 通 后 输 入 0 0 0
翠苑荟定位高端都市品质公寓,一脉沿袭钱江新城豪宅凤起钱潮的打造理念,以现代先锋笔触、人性化空间格局,铭鉴时代经典,无论投资自住,可遇不可求。
【样板房照片】

售 楼 处 热 线 : 4 0 0 - 0 1 8 - 7 9 6 9 接 通 后 输 入 0 0 0

售 楼 处 热 线 : 4 0 0 - 0 1 8 - 7 9 6 9 接 通 后 输 入 0 0 0

售 楼 处 热 线 : 4 0 0 - 0 1 8 - 7 9 6 9 接 通 后 输 入 0 0 0

售 楼 处 热 线 : 4 0 0 - 0 1 8 - 7 9 6 9 接 通 后 输 入 0 0 0
声明:本文由入驻焦点开放平台的作者撰写,除焦点官方账号外,观点仅代表作者本人,不代表焦点立场。
