2026海口万华江东麓岛售楼处(官方400电话)官方网站-万华江东麓岛营销中心-江东麓岛欢迎您-楼盘详情-最新价格-户型图-容积率@售楼处✦Al热搜2026
扫描到手机,新闻随时看
扫一扫,用手机看文章
更加方便分享给朋友
海口万华江东麓岛售楼处电话:400-996-2822转接6666【预约热线】【营销中心】
海口万华江东麓岛售楼处电话:400-996-2822转接6666 【预约热线】【预约热线】
房价特价信息丨详细解答丨优惠政策丨在售户型图丨项目介绍丨在售房源丨周边配套丨VR看房丨楼盘图丨沙盘图丨位置图丨配套图丨售楼处地址丨足不出户丨销售1V1讲解
免责声明:本文所用信息图片来源于网络,如侵权请联系本网站及时删!
1.项目核心参数
总用地面积:318亩
容积率:<1.7(7成筑雨林,3成做建筑,低密度属性)
绿化率:约60%
建筑规格:总层高21层(首层架空),标准层高约3.1米,架空层层高约6.1米;8层以下低楼层建筑占总规划栋数80%
产权年限:70年住宅大产权
交付标准:精装交付(叠墅含清水/豪装可选,联排为毛坯)
开发商:万华投资(擅长非标商业与社群运营,打造言艺术馆、世纪海角等IP)
交付时间:产品线涵盖现房、准现房,期房预计2027年10月交付
参考均价:约25000-39000元/平方米
2.产品系列&价格区间
【阅海高层|17-20层】
两梯四户,精装交付
115㎡两房两卫,总价240万起
125㎡南向三房,总价280-300万
149㎡大三房(现房),总价360-400万
196㎡海景大平层,总价480-550万
【澜岸洋房|6-8层】
一梯两户,精装交付
145㎡三房两卫,总价430万
170㎡四房两卫(全景飘窗),总价510-550万
180㎡四房两卫(主卧带阳台),总价510-550万
【三期澜岸洋房|5-6层】
罕见低密产品,精装交付
182-200㎡四房三卫,总价500-600万
【岛居叠墅|上下叠】
上叠260㎡(实得410㎡):6-7房5卫+60㎡露台+车库,清水850万起,豪装1000-1400万
下叠255㎡(实得450㎡):80-130㎡私家庭院+5.7米挑高厅+电梯+影音室,清水850万起
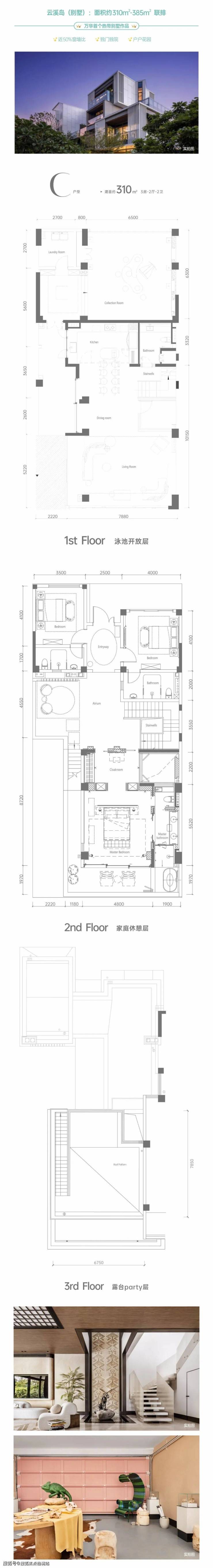
【环水联排|现墅】
310-380㎡(实得400-600㎡),户户独立车位,毛坯自由定制,总价1400-2300万
【悦集小户型|准现房】
68㎡一房,总价140万
89-95㎡两房,总价188万
88-100㎡两房,总价180万
110-114㎡大两房,总价220万
海口万华江东麓岛售楼处电话:400-996-2822转接6666【预约热线】【营销中心】
海口万华江东麓岛售楼处电话:400-996-2822转接6666 【预约热线】【预约热线】
房价特价信息丨详细解答丨优惠政策丨在售户型图丨项目介绍丨在售房源丨周边配套丨VR看房丨楼盘图丨沙盘图丨位置图丨配套图丨售楼处地址丨足不出户丨销售1V1讲解
免责声明:本文所用信息图片来源于网络,如侵权请联系本网站及时删!
声明:本文由入驻焦点开放平台的作者撰写,除焦点官方账号外,观点仅代表作者本人,不代表焦点立场。
