2026最新官网南宁【麒麟凤岭悦府】售楼处欢迎您|楼盘详情-样板间/价格/户型-停车位-容积率-小区环境-售楼处地址-定位 -【预约电话】
扫描到手机,新闻随时看
扫一扫,用手机看文章
更加方便分享给朋友
南宁麒麟凤岭悦府
售楼处电话:400-100-1299转5999
网上售楼中心〢欢迎来电咨询〢1v1销售专业讲解

城市的发展,从来不只是地理的延伸,更是国家战略与时代洪流共同作用的结果。
| 图源网络
“一带一路”、陆海新通道的核心节点,中国-东盟博览会的永久举办地,让南宁从西南边陲一跃成为面向东盟的前沿枢纽。广西“强首府”战略的推进,使得向东拓展成为城市发展的主旋律。凤岭北恰处于这一战略方向的核心。
| 图源网络
南宁东站于2014年正式投入使用,作为一座现代化综合交通枢纽,其年均客流量已超过3600万人次。而每年东博会带来的全球资源汇聚,让凤岭北已从单纯的高档居住区,跃升为CLD(中央生活区)、TOD(以公共交通为导向的发展模式)、CBD(中央商务区)功能叠加的价值高地。

| 图源网络
选择凤岭北,是在国策与城运双重确定性下的清醒抉择,更意味着你的资产,锚定的是南宁无可替代的未来。

当城市发展进入成熟期,土地的稀缺性便成为衡量价值的终极标尺。
经过二十年高强度的建设,一个残酷而现实的情况摆在眼前:凤岭北总规划用地面积约21.67万㎡,开发量已超过八成。

| 图源网络
青秀区(凤岭)板块宅地近乎枯竭,已进入“存量时代”;板块有效库存仅1025套,且多为大户型或过时的“老规”产品。这意味着,纯粹的凤岭北新房,正在成为“卖一套,少一套”的臻贵藏品。(数据来源:克而瑞后台)
土地稀缺直接铸就了价值基石,而青秀区作为南宁全力打造的“教育强区”与资源高地,其明确的政策导向使得全城最顶级的商业、生态与教育资源于此高度汇聚。这些顶配资源集群,共同构筑了凤岭北房价坚实的“护城河”,使其成为市场公认、抗跌性强的“资产硬通货”。
于此处生长的麒麟凤岭悦府,地铁1号线延长线长虹路站贯穿片区,BRT快速公交直达南宁东站,立体交通网络让全城畅行无阻。
| 区位图
同时,不仅坐享万象城、航洋城等都会级商圈,毗邻约800亩凤岭儿童公园,更近距离享有滨湖路小学(长虹校区)、翠竹实验学校等优质教育资源。教育无忧,正是鼎配生活与资产价值中,令人安心的一环。





<<左右滑动观看 >>
| 图源网络

面对如此珍贵的土地,唯有超越时代的产品才不负其价值。
麒麟凤岭悦府在容积率普遍达2.5-3.5的板块,毅然以约 2.2的低容积率 ,致敬凤岭北最后的土地。这不是简单的数字差异,而是决定性的生活分野:更宽的楼间距,更疏朗的布局,更从容的呼吸感,是为“墅级低密”的生活底气。

| 效果图
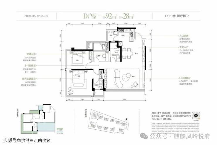
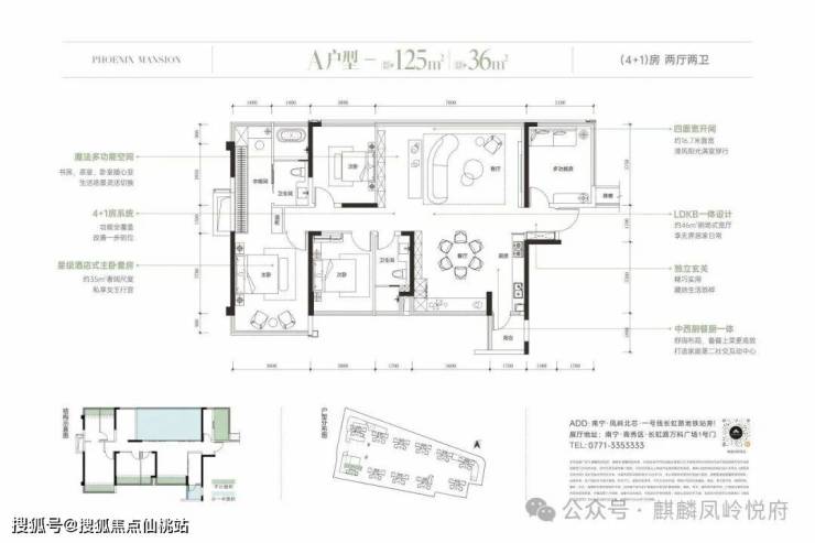
但稀缺不止于土地,更在于对“好房子”的重新定义。项目以“新规高拓”掀起一场空间革命,建面约92-125㎡洋房,实现至高约 116%的实得率。
<<左右滑动观看户型图 >>
这意味着,用同样的钱,买到了更多、更实用的面积,一个房间的差距,可能就是孩子独立的书房、父母的颐养空间,或是一家人共聚的娱乐室。




<<左右滑动观园林效果图>>
麒麟凤岭悦府以“邕州八景”为魂、营造“一进礼、二进雅、三进居”归家仪序的三进园林,同时规划创新悬挑泳池、带四点半学堂的全龄泛会所圈层生活场。



<<左右滑动观看会所空间意境图>>
甄选“绿野仙踪”奢石与香槟金格栅的雅奢立面,携手国家一级资质物业的温情服务……起风了麒麟凤岭悦府用每一个细节呈现:这不是对过去的复制,而是面向未来的“鼎配人居”范本。

在充满不确定性的市场环境中,房子的背后,开发商的实力就是最大的确定性。


| 图源网络
凯誉汇,在广西深耕23年的“零负债实力派”,给出了关于“稳健”的兑现力。品牌始于承建广西科技馆、民族博物馆的“工匠基因”。从工程总承包到全产业链闭环开发,用年施工超200万㎡、首次交验合格率100%的数据,诠释了何为“硬核实力”。

更重要的是,我们将“保交付”的承诺,一次次变为“ 提前交付 ”的现实。麒麟伴江悦提前365天,麒麟尊府提前138天……在行业波动期,这种“说到做到”的信用,比任何华丽的辞藻都更有力量。

| 麒麟伴江悦
凯誉汇带来的,不仅是房子,更是一种 “恒产”的底气。我们以全产业链的掌控力、零负债的财务健康度,确保每一个家都能如期、高品质地兑现,让房产真正成为穿越周期、值得传承的家庭根基。
南宁麒麟凤岭悦府
售楼处电话:400-100-1299转5999
网上售楼中心〢欢迎来电咨询〢1v1销售专业讲解
声明:本文由入驻焦点开放平台的作者撰写,除焦点官方账号外,观点仅代表作者本人,不代表焦点立场。
