No.1三亚保利棠隐售楼处电话→官方权威发布 →百度认证→户型图-在售房源-楼盘详情-容积率-备案价@最新资料
扫描到手机,新闻随时看
扫一扫,用手机看文章
更加方便分享给朋友
三亚保利棠隐
售楼处电话400-688-0252【售楼中心】
24小时热线◆温馨提示:看房需提前预约
售楼处电话400-688-0252〢【售楼中心】
◆在售房源户型价格详询售楼处〢一对一服务
售楼处电话400-688-0252〢【售楼中心】
售楼处销售1v1专业讲解〢24小时热线
〢〢〢〢〢〢〢〢〢〢〢〢〢〢〢〢〢〢〢
在三亚海棠湾这片梦幻度假胜地,保利棠隐宛如一颗隐匿于繁华深处的稀世珍宝,散发着独特而迷人的魅力。

项目概况
保利棠隐占地 4.34 万 m²,计容面积 1.52 万 m²,容积率低至 0.35,绿地率达 30%,土地性质为 40 年。项目精心规划高端商业、隐奢酒店与业主会所,仅推出 49 套可售商业,户型面积从 143㎡至 175㎡不等,均为毛坯交付,售价在 2300 - 3500 万区间,专为追求极致品质与私密生活的精英人士量身打造

【占地面积】4.34万m²
【计容面积】1.52万m²
【容 积 率】0.35
【绿 地 率】30%
【土地性质】40年
【项目规划】高端商业、隐奢酒店、业主会所
【可售商业】49套
【户型面积】建面约 135-175m²
【交付标准】毛坯交付
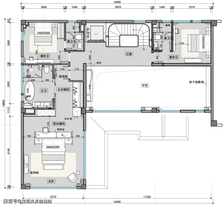
A户型(一字型)
建筑面积:约143㎡,4房4厅6卫+2保姆房+2车位+1庭院泳池,使用面积670m²-980m²
B户型(L字型)
建筑面积:约173㎡,5房4厅7卫+2保姆房+2车位+1庭院泳池,使用面积920m²-1410m²
C户型(U字型)
建筑面积:约173㎡,5房4厅7卫+2保姆房+2车位+1庭院泳池,使用面积940m²-1280m²
户型品鉴
(一)A 户型(一字型)
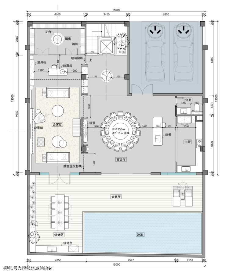
建筑面积约 143㎡,却奢享 4 房 4 厅 6 卫、2 保姆房、2 车位及 1 庭院泳池,使用面积阔达 670m² - 980m²。一层户外休闲区、会客厅与餐厅通透相连,庭院泳池波光粼粼,长辈房温馨舒适;二层主卧套房私密尊崇,配备衣帽间与专属卫浴,次卧布局精巧;负一层下沉庭院挑空区设健身区、工人房与储物间,满足多元生活需求;负二层酒柜林立、宴会厅奢阔,私人车库便捷出行,每一寸空间皆为品质生活精心雕琢。

(地上一层)

(地上二层)

(负一层)

(二)B 户型(L 字型)
约 173㎡的空间里,布局 5 房 4 厅 7 卫、2 保姆房、2 车位与庭院泳池,使用面积在 920m² - 1410m²。一层客厅与餐厅畅连庭院,泳池景观尽收眼底,长辈房与客卫贴心设计;

二层主卧套房尽显奢华,书房静谧优雅,次卧温馨宜人;

负一层下沉庭院周边环绕健身区、工人生活区与丰富储物空间;

负二层酒窖、台球室、影音室一应俱全,为休闲时光增添无限精彩,为居者呈上全方位舒适体验。

(三)C 户型(U 字型)
同样约 173㎡,规划 5 房 4 厅 7 卫、2 保姆房、2 车位及庭院泳池,使用面积 940m² - 1280m²。一层家庭厅与餐厅相连,庭院美景相伴,卧室分布合理,公卫便利;

二层卧室布局错落有致,挑空区丰富空间层次;

负一层下沉庭院周边设工人房、家政间,储物无忧;

负二层影音室、高尔夫球室、品酒雪茄区等专属空间,满足多元休闲娱乐追求,精筑格调生活范本。

三、园林景观
园林设计以杭州法云安缦为蓝本,师法自然、禅意幽远。悉心挑选 40 种热带特色植被,葱郁繁茂、四季繁花。更珍视原地块 4 棵百年古树,以此为核心景观节点,古木参天、岁月沉淀,与新植交相辉映,构筑宁静深邃、自然野趣的园林画卷,让每一步归家皆为穿越诗意秘境的悠然旅程。

鼎级商业IP环绕 瞩目滨海消费目的地
海棠湾造就的千年繁华底色,在这片土地上不曾褪色。全球规模第二大的单体免税店--三亚国际免税城已开业,太古里、宽窄巷子、万象城、北京SKP、上海百联、珠宝金街等即将入驻,一个全球时尚舞台与消费目的地正在升起。
TOP级滨海生活奢配 32家超星级酒店集群
22公里海岸线,国际鼎级品牌滨海酒店带,规划32家超5星级酒店,汇集亚特兰蒂斯、红树林、艾迪逊、保利瑰丽等酒店。
主题乐园动静皆宜·释放内心向往
国家5A级潜水基地蜈支洲岛,海水可见度约27米,潜水、海钓等多种海上娱乐项目如临马尔代夫。亚特兰蒂斯水上主题乐园、海昌梦幻不夜城、国家水稻公园,释放内心本真向往。
国际视野知名院校 给孩子受益终身的学习力
知名院校护航,人大附中三亚学校、美国卫斯理安历史学院附属海南国际高中,家门口的知名院校,寓教于乐,让学习成为孩子喜悦成长的一部分。
国家级疗养基地 涵养生命品质
解放军总医院301医院(唯一分院)、广安门医院(在建)、北京口腔医院(在建)、赫尔曼运动康复医院、上工谷运动医疗康复中心等,更好的认知身体能量,善待每一个人生阶段。
保利棠隐--隐于海棠之芯
临海面河 绝佳宝地 上风上水
海棠湾核心地段,临海面河,玉带缠腰,河海汇聚呈“敛财”之势,背靠中国30000公里海岸线上最高的地标建筑保利瑰丽酒店,远侧是连绵起伏的环山,藏风聚气,得水为上,上风上水的绝佳风水宝地;
一半世界一半世外
保利棠隐坐拥不可复制的黄金区位,项目位于保利瑰丽酒店正对面,海棠北路与海岸大道的交汇处,在大海与大山之间,在海棠河与红树林之间,隐藏着一个700年的历史文化底蕴的村落——大灶村。大约在明朝中期,大灶村的居民就一直居住、生活、繁衍在此,发展至今已经有接近700年的历史沉淀。
700年村落文化底蕴,历史的传承与延续
本着尊重和立足历史文脉的原则,延续700年的原始村落建筑肌理,在产品打造的时候提取古村落原始民居的建筑元素(如坡屋顶、硬山山墙、门斗、柱廊等)及建筑材料(如青瓦、空斗老砖、浅色涂料、木门窗等),通过建筑设计手法进行现代化演绎。
三亚保利棠隐
售楼处电话400-688-0252【售楼中心】
24小时热线◆温馨提示:看房需提前预约
售楼处电话400-688-0252〢【售楼中心】
◆在售房源户型价格详询售楼处〢一对一服务
售楼处电话400-688-0252〢【售楼中心】
售楼处销售1v1专业讲解〢24小时热线
〢〢〢〢〢〢〢〢〢〢〢〢〢〢〢〢〢〢〢
声明:本文由入驻焦点开放平台的作者撰写,除焦点官方账号外,观点仅代表作者本人,不代表焦点立场。
