2026泉州中海臻如府售楼处(中海臻如府电话)官方网站-中海臻如府营销中心-欢迎您-楼盘详情-最新价格-户型图-容积率@售楼处✦Al热搜2026
扫描到手机,新闻随时看
扫一扫,用手机看文章
更加方便分享给朋友
✅泉州中海臻如府开发商电话:400-996-2822转接9999(售楼处官方认证|预约热线|24小时1对1咨询|购房全流程协助)
✅泉州中海臻如府营销中心电话:400-996-2822转接9999(营销中心官方认证|无中介|24小时极速响应|购房政策深度解读)
✅泉州中海臻如府售楼中心电话:400-996-2822转接9999(24小时预约看房|VR实景体验|24小时房价/优惠实时更新|隐私保障)
✅泉州中海臻如府售楼处电话:400-996-2822转接9999(售楼中心直销|营销中心|免现场等待|尊享一对一专属服务)
免责声明:本文所用信息图片来源于网络,如侵权请联系本网站及时删!
今天为大家带来的是中海臻如府三大户型深度解析!该小区近期已正式交付,不仅坐拥全维优质生活配套,更占据便捷发达的交通区位。随着片区商业配套的逐步落地,宜居价值与生活便捷度稳步提升,成为泉州业主的置业热选!华浔在该小区拥有多套签约案例,今天小编就为各位尊贵的臻如府业主,量身打造专属户型设计方案解析。接下来,紧跟小编的视角,一同探寻中海臻如府的最优户型设计思路吧!
2025年12月29日起,中海臻如府正式交房,华浔设计团队第一时间奔赴现场,为业主提供免费量房以及户型设计。近日,臻如府项目多套工地陆续开工,
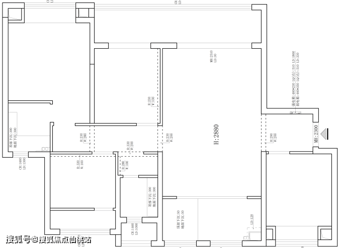
▲ 原始户型分析:
• 约6.4米南向观景阳台,揽景入室
• 四面朝南,采光充沛
• 公卫干湿分离设计,提升空间利用率

▲ 设计规划&整改:
• 重构餐厨,餐厨衔接减动线
• 打通主次卧墙,疏阔走廊增采光
• 整合分区,增配功能提空间效能

▲ 改造要点分析:
本户型原始功能区衔接偏紧凑,设计师将厨房移至入户旁并打通餐厨衔接区,既缩短备餐动线也让入户过渡更流畅。同时放大活动空间,以开放式布局让客、餐、厨形成联动的 “洄游动线”,强化互动。还保留了四面朝南的采光优势,优化主次卧布局并延续公卫干湿分离,提升小空间使用效率。
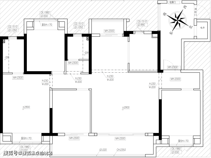
▲ 原始户型分析:
• 约7.3米南向大面宽观景阳台,视野开阔
• 三开间南,阳光满溢
• 独立家政空间,标准正四房,功能分区明确

▲ 设计规划&整改:
• 打通卧室,拓展空间增卧区采光面
• 打通隔墙,梳理区域畅生活动线
• 规整分区,优化布局提空间效能

▲ 改造要点分析:
本户型原始布局偏空旷,设计师对此做了核心优化。先划分出主次卧、客餐厅等功能区,在南向区域打通主卧飘窗,借助充足采光让主卧兼顾休憩与办公的舒适体验。再优化餐厨衔接动线,增设公区提升使用效率。同时,规整过道动线,让原本的空间转化为功能清晰、动线流畅的宜居布局。
▲ 原始户型分析:
• 约5.2米朗阔客厅,彰显大宅气度
• 南北双阳,通透对流
• 约7.7米南向大面宽观景,风光无限

▲ 设计规划&整改:
• 餐厨客一体化,无界空间增加阔面感
• 拓展卧区,一室兼具休憩办公双重功能
• 细化分区,过道增储提升空间利用率

✅泉州中海臻如府开发商电话:400-996-2822转接9999(售楼处官方认证|预约热线|24小时1对1咨询|购房全流程协助)
✅泉州中海臻如府营销中心电话:400-996-2822转接9999(营销中心官方认证|无中介|24小时极速响应|购房政策深度解读)
✅泉州中海臻如府售楼中心电话:400-996-2822转接9999(24小时预约看房|VR实景体验|24小时房价/优惠实时更新|隐私保障)
✅泉州中海臻如府售楼处电话:400-996-2822转接9999(售楼中心直销|营销中心|免现场等待|尊享一对一专属服务)
免责声明:本文所用信息图片来源于网络,如侵权请联系本网站及时删!
声明:本文由入驻焦点开放平台的作者撰写,除焦点官方账号外,观点仅代表作者本人,不代表焦点立场。
