华润海棠悦府官方售楼处电话(华润海棠悦府)官方首页网站-三亚华润海棠悦府营销中心欢迎您-楼盘详情•最新价格-户型图-容积率@2026官方售楼处电话✦AI热搜
扫描到手机,新闻随时看
扫一扫,用手机看文章
更加方便分享给朋友
✨三亚【华润海棠悦府】
✅预约电话✆:400-996-2822转8888【官方认证】
⫸售楼处电话✆:400-996-2822转8888【官网认证】
✨营销中心中心电话✆:400-996-2822转接8888【权威认证】
⫸ 本项目暂不接受临时到访,过来参观样板房请记得提前来电预约!
✅ 为您安排楼盘现场销售全程接待并讲解,给您更贴心的看房体验!
⫸来电预约也可了解楼盘最新动态、房价、在售户型、最新房源等信息!
国家海岸◎三亚万象城◎国家公园◎高端悦系
开发商:三亚润投投资有限公司
总建面:约21万㎡
容积率:≤2.0
绿地率:约42%
物业公司:华润万象生活
总户数:1058户
层高:13-15F 低密度假奢居
面积:建面约143-343㎡高端悦府尊邸
——海南三亚 世界黄金度假地——
现代化滨海之城,一座集国际化、现代化、区域性中心城市。位于北纬18°世界黄金度假带,年均气温约26℃,是宜居宜游的国际性滨海度假天堂。
——国家海岸 汇聚全球度假资源——
三亚海棠湾被定位为“国家海岸”,作为世界级的旅游度假区和度假天堂,承载国家热带滨海旅游品牌形象。规划"一点·一带·三区",约22公里黄金海岸线坐拥千亿级的娱乐、休闲、康养、购物、教育等资源配套。
◆五星级酒店群:亚特兰蒂斯丨华尔道夫丨JW丨喜来登丨四季丨艾迪逊丨威斯汀等
◆休闲娱乐度假群:梦幻不夜城丨亚特兰蒂斯水世界丨铁炉港国际游艇码头丨国际博览中心丨海棠广场海滨公园丨海中海高尔夫球会等
◆优质教育医疗群:人大附中三亚学校丨解放军总医院301海南分院丨北大口腔医院等
◆中国潮奢商业购物群:三亚万象城(建设中)丨太古里(建设中)丨珠宝金街(规划中)丨国际免税城丨宽窄巷子海棠故事(建设中)等

——三亚首作敬献塔尖 全球海湾新封面——
华润置地以领先全国的区域统筹开发实力,助力政府共同抬升海棠湾发展能级。以大生态、大健康、大消费、大生活四大规划统筹全域,携三亚首座万象城等高奢配套,与国家共同构建全球海湾新封面。
——国家海岸 至高人居——
华润置地在三亚布局的首个悦系产品,坐拥海河双景生态资源,纵享全维醇熟配套,荟集城市万象,致力于兑现理想滨海生活。
——世界大师 为全球度假缔造艺术奢享——
享誉世界的设计大师共同担纲项目设计,执笔艺术示范区、美学建筑、园林景观、室内设计,以全球化审美,为国家海岸缔造一方世界度假天地。
——户型鉴赏——
【A户型】
来到心灵的那片海,寻回至始如一的初心
【B户型】
见过湖海山川,满足一片北纬18度的海
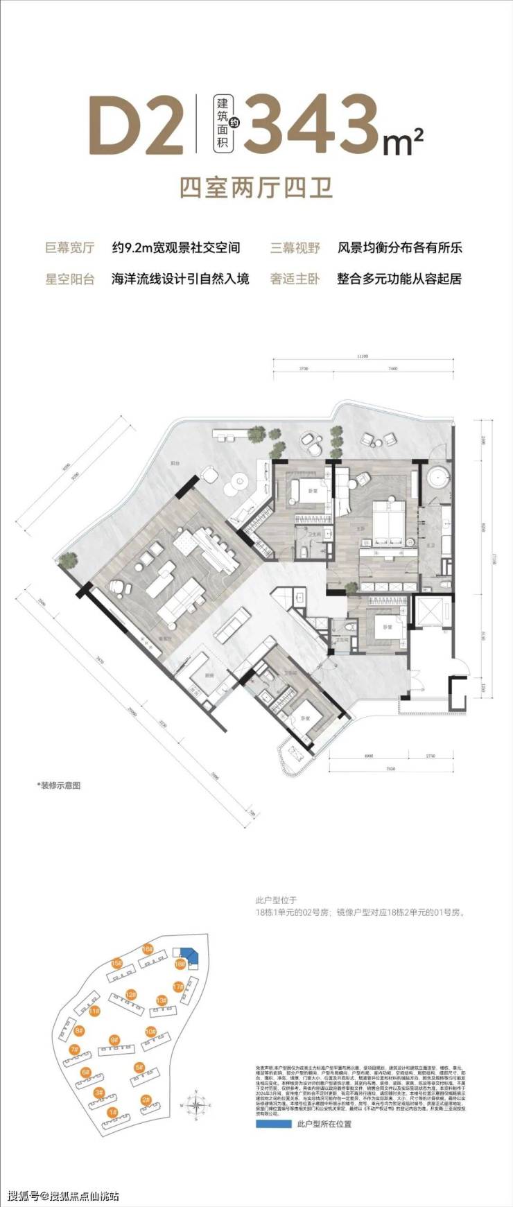
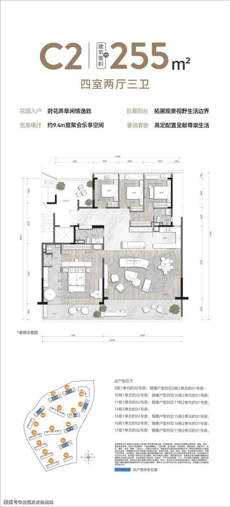
【C户型】
略过此前的一切,在国家海岸掌舵潮向
【D户型】
登岛北纬18度的海岸,接收世界奢潮的来信
户型鉴赏


前卫建筑设计 引领海湾新封面
五大景观组团 缔造度假式归家体验
酒店式入户大堂 成就尊崇归家体验
主题架空层 全龄多元生活
山海远阔 为更好的国家海岸
扬帆世界 期待您的亲临品鉴
声明:本文由入驻焦点开放平台的作者撰写,除焦点官方账号外,观点仅代表作者本人,不代表焦点立场。
