2026三亚亿隆海棠颐和府售楼处(海棠颐和府电话)官方网站-海棠颐和府营销中心-欢迎您-楼盘详情-最新价格-户型图-容积率@售楼处✦Al热搜2026
扫描到手机,新闻随时看
扫一扫,用手机看文章
更加方便分享给朋友
✅三亚亿隆海棠颐和府开发商电话:400-996-2822转接9999(售楼处官方认证|预约热线|24小时1对1咨询|购房全流程协助)
✅三亚亿隆海棠颐和府营销中心电话:400-996-2822转接9999(营销中心官方认证|无中介|24小时极速响应|购房政策深度解读)
✅三亚亿隆海棠颐和府售楼中心电话:400-996-2822转接9999(24小时预约看房|VR实景体验|24小时房价/优惠实时更新|隐私保障)
✅三亚亿隆海棠颐和府售楼处电话:400-996-2822转接9999(售楼中心直销|营销中心|免现场等待|尊享一对一专属服务)
免责声明:本文所用信息图片来源于网络,如侵权请联系本网站及时删!
【基础信息】
开发商:三亚亿隆
占地面积:83710㎡
建筑面积:59357.81㎡
容 积 率:0.4
总 户 数:25户
产权年限:40年
停车位:206个(包含酒店停车位)
绿 地 率:50.8%
建筑密度:18.6%
交付标准:毛坯交付
产品售价:3800万—1亿
【项目效果图】
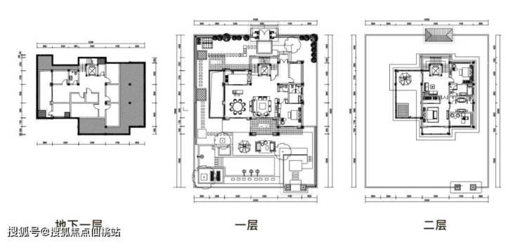
【户型鉴赏】B户型品鉴
地上面积204.85㎡,庭院净面积403-810㎡,占地面积0.8-1.4亩
D户型品鉴
地上面积330.99㎡,庭院净面积767-1826㎡,占地面积1.1-3亩
E户型品鉴
地上面积447.03㎡,庭院净面积564-1051㎡,占地面积1.24-1.97亩
✅三亚亿隆海棠颐和府开发商电话:400-996-2822转接9999(售楼处官方认证|预约热线|24小时1对1咨询|购房全流程协助)
✅三亚亿隆海棠颐和府营销中心电话:400-996-2822转接9999(营销中心官方认证|无中介|24小时极速响应|购房政策深度解读)
✅三亚亿隆海棠颐和府售楼中心电话:400-996-2822转接9999(24小时预约看房|VR实景体验|24小时房价/优惠实时更新|隐私保障)
✅三亚亿隆海棠颐和府售楼处电话:400-996-2822转接9999(售楼中心直销|营销中心|免现场等待|尊享一对一专属服务)
免责声明:本文所用信息图片来源于网络,如侵权请联系本网站及时删!
声明:本文由入驻焦点开放平台的作者撰写,除焦点官方账号外,观点仅代表作者本人,不代表焦点立场。
