陵水山海颂叠境售楼处(山海颂叠境)官方网站-山海颂叠境官方营销中心欢迎您-山海颂叠境2026楼盘详情•最新价格-户型图-容积率
扫描到手机,新闻随时看
扫一扫,用手机看文章
更加方便分享给朋友
陵水山海颂.叠境
售楼处电话:400-100-1299转5888
网上售楼中心〢欢迎来电咨询〢1v1销售专业讲解

项目:富力山海颂·叠境
产品:叠墅、联排
占地:228亩 建面:3.5万㎡
绿化率:55% 容积率:0.22
🏠31栋 共155套
首开1-8#栋 40套臻藏
稀缺一线半山海景院墅‼
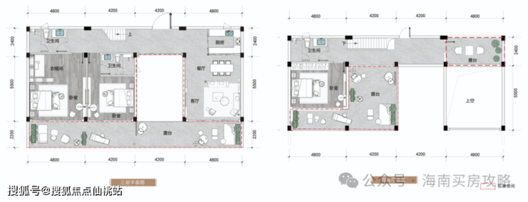
🏠目前在售户型:
A户型 御海 边户
建面317 ㎡
D户型 云海 上叠
建面212 ㎡
C户型 瀚海 下叠
建面145 ㎡
下叠850万
上叠1300万
边户2200万
👉70年产权 毛坯交付👈
🌟低密度墅区 超高得房率
🌟花园、泳池全场景户户观海
🌟龙脉靠山 面海纳财
🌟3200亩大盘全维配套
预约带看:提前1天
验资带看:
客户提供500万可支配资产证明
例如:存款、股票等各类理财….
在海南众多的房地产项目中,陵水富力的山海颂・叠境宛如一颗璀璨的明珠,散发着独特的魅力。今天,我们就来全方位剖析一下这个项目,看看它是否能成为你理想中的家园。
一、项目基础信息概览
山海颂・叠境由富力集团精心打造,项目总用地面积 15.2 万㎡,总建筑面积 3.5 万㎡,建筑性质为住宅类,采用框架结构。小区容积率低至 0.22,绿化率高达 55%,总户数仅 155 户,产权年限为 70 年。目前在售户型有 145㎡、212㎡、317㎡ 。从这些基础数据就可以看出,山海颂・叠境致力于打造一个低密度、高绿化、高品质的居住社区 。
二、区位价值:天赋稀贵,山海交融
(一)自然环境得天独厚
项目占位陵水香水湾高端低密旅居片区,与坎昆、夏威夷同处北纬 18° 热带黄金海岸。这里森林覆盖率超 61%,年平均温度 26°C,长夏无冬,气候宜人。背靠吊罗山热带雨林,直面香水湾碧波,内部有淡水溪流蜿蜒,向外可俯瞰分界洲岛,“山 - 海 - 河 - 岛 - 礁” 五重生态体系在此完美融合,宛如天然生态剧场 。

(二)交通逐步优化
虽然目前项目位置相对较为私密,但交通正在不断完善。2025年内春澜公路通车后,项目可直通陵水城区,到陵水县城距离至少缩短6公里,至高铁站距离约7公里,真正实现湾城一体化,能让业主快速从湾区的静谧切换到城区的繁华 。

三、投资价值:稀缺资源,稳健增值
(一)资源稀缺性
在海南房产市场,土地资源愈发珍贵。山海颂・叠境所处的香水湾片区本身就是低密隐奢之地,项目更是巧妙地位于半山台地,顺坡铺陈 31 栋建筑,实现户户 270° 环幕瞰海,这种半山瞰海的资源在海南极为稀缺,是不可复制的顶豪资产配置选择 。

(二)区域发展潜力
陵水近年来在旅游、康养等产业发展迅速,随着交通等基础设施的完善,将吸引更多的游客和康养人群。香水湾区域配套也在不断升级,项目周边的五星级酒店群、游艇会、潜水基地等高端度假设施逐步成熟,这都为房产的增值提供了有力支撑 。
四、户型优势:奢阔空间,尊崇体验
(一)户型布局合理
在售的 145㎡、212㎡、317㎡户型,无论是三居还是四居,都做到了客厅与卧室分区明确,动线合理,减少日常生活中的相互干扰。以 317㎡户型为例,宽敞的客厅连接着景观阳台,采光通风极佳,让整个空间显得格外通透 。
绝美港湾,百米亲海,享户户热带海
超大观海落地窗,高达至224%灵动空间
多卧室套房设计,满足全家个性定制需求
前庭后院,泳池相伴,私家山海桃源
大三亚臻藏级资产,百米亲海
山海岛礁河五重绝美景观尽收眼底
多功能厅挑高6m,高达至255%灵动空间
多卧室套房设计,满足个性定制需求
前庭后院,全赠送全明灵动空间


观景露台

餐厅效果图

主卧效果图

花园景观效果图
绝美港湾,珍藏荧幕级北纬18°热带海
全景无界视野接纳山海绝美景色
挑高4.9m,高达至300%灵动空间
18m面宽,9m横厅设计,IMAX级巅峰视野
270°山海视角,18m巨幕露台,私家空中花园


会客厅效果图

娱乐室效果图

主卧效果图

空中花园效果图
(二)独特空间设计
6 米挑高空中庭院串联天空花园与下沉绿境,构建出 “建筑即生态” 的垂直绿洲。站在露台上,山景、海景与园林景尽收眼底,实现 “一墅三景” 的至臻景观体验。这种独特的空间设计,不仅增加了居住的趣味性,也提升了居住的品质感 。
五、生活配套:一站式服务,尽享便捷
(一)高端酒店环绕
项目周边有南北万豪酒店、夏日冲浪酒店等五星级酒店,为业主提供高端的休闲、餐饮、娱乐服务,即使不出小区太远,也能享受到顶级的度假体验 。

陵水山海颂.叠境
售楼处电话:400-100-1299转5888
网上售楼中心〢欢迎来电咨询〢1v1销售专业讲解
声明:本文由入驻焦点开放平台的作者撰写,除焦点官方账号外,观点仅代表作者本人,不代表焦点立场。
