广州保利玥玺湾官方网站-保利玥玺湾售楼处电话-保利玥玺湾楼盘详情-交房时间-房价户型图-小区环境-楼盘详情-周边配套-24h电话
扫描到手机,新闻随时看
扫一扫,用手机看文章
更加方便分享给朋友
广州保利玥玺湾售楼处电话:400-996-2822转接6666【预约热线】【营销中心】
广州保利玥玺湾售楼处电话400-996-2822转接6666 【预约热线】【预约热线】
房价特价信息丨详细解答丨优惠政策丨在售户型图丨项目介绍丨在售房源丨周边配套丨VR看房丨楼盘图丨沙盘图丨位置图丨配套图丨售楼处地址丨足不出户丨销售1V1讲解
免责声明:本文所用信息图片来源于网络,如侵权请联系本网站及时删!
全面分析+优缺点总结,王牌登场!!南向望珠江夜景+超新规产品130%使用率
天河临江大道北侧AT080722地块(南方面粉厂地块),历经5小时厮杀,148轮竞价,项目2024年9月29日由保利地产拍得,最终以总价1175509万元斩获,折合楼面价66957元/㎡。扣除配建后,实际可售楼面价高达76502元/平。

继地价榜第四的员村一横路地块(现保利华创都荟天珺)后,保利在珠江新城再下一城,顺手创造了天河地王。跻身广州楼面价TOP2,仅次于琶洲地王。

地块位于金融城西区桥头堡,临江大道北侧,毗邻珠江新城,汇悦台以东600米,能直接享受到珠城的不少优质配套!
面粉厂地块位于临江大道旁,与珠城直线距离仅约600m;隔着净水厂,就是广州豪宅标杆汇悦台,二手成交单价一度超30万/平。
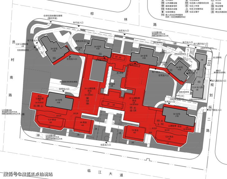
3月14号,政府网站就正式获批了项目的规划图!

从规划图看广州临江大道项目的楼栋布局、面积段已经基本定型了!
1.全盘一共6栋住宅,货量500+套。
2.地块内部各个楼栋由架空连廊连接,可以直达商业及公建配套区域。
3.配建巨量底商(红色部分),未来极有可能打造成为会所,顶部承担屋顶花园功能。

4.通江廊道贯穿整个社区,整个小区非常亲江。
5.商业部分临街临江布置,最高仅有4层。
6.临江大道项目不会是天字系产品,会是全新的产品系,超越过往。
7.保利内部极其重视这一项目,所以全盘细节正处于魔鬼打磨中,项目也不会立刻 登场,预计下半年才有希望亮相。
在局座肉眼可及的城市范围内,广州就有一片巨大的可更新区域——在广州民间,他们叫:员村、程界西、程界东。
在官方规划文件里,它叫:金融城西区,规划面积约3.65平方公里。
因为位于珠江新城和金融城起步区之间,在楼市语境中,它也是珠江新城东扩的下一站。

在其东、西、南向,分别就是珠金琶三大CBD。
放眼全国,像金融城西区这样还有3.65平方公里,超过5500亩,被所在城市三大超级底盘环绕拱卫的区域,都极为罕见。
毋庸置疑,现在的珠金琶就是拉高城市上限的超级王牌。
这种“1+1+1>3”的联动模式,不止超越了广州和湾区的发展版图,在国内大城市中也难以复制。
即便是北上深三地,也都无法像广州这样,把三大CBD融合在紧凑的10公里江岸线上。
|地标建筑群实拍
南方面粉厂的热抢,很明显广州核心地段的核心地块,仍是楼市的香饽饽;
琶洲西区、金融城地价相继刷新,或预示着广州房价即将迈进一个新阶梯;
核心地段的顶级豪宅,将成为市场主流趋势,走出独立行情。
保利南方面粉厂项目,代表的是广州已有发展成就的现状优势;而保利·天曜则代表整个金融城西区焕新之后的潜力优势。
【开发商】保利地产
【产权年限】70年
【占地面积】约47000m²
【总建筑面积】约175000m²
【容积率】3.7
【总栋数】6栋
【总户数】预计500户
【首开面积】 205-640㎡
交通配套
东北侧就是广州地铁 5 号线与 11 号线交汇的员村站,仅 300 米的距离,步行几分钟即可到达 。
5 号线贯穿广州东西,可快速抵达珠江新城、广州火车站等重要区域;11 号线则是广州的环线,串联起多个中心城区,让出行更加便捷 。


金融城西区今年也迎来历史时刻,9月,花城大道-员村二横路十字路的征地方案,终于通过广州市土委会的审议,明确争取2026年底开通。
这意味着,珠江新城、金融城、琶洲三大CBD的关键纽带,终于要打通发展「堵点」,实现物理层面的破壁。
往东,一脚油门直抵金融城起步区,往西,无缝对接珠江新城,往南,畅达琶洲。至此,广州黄金商务连廊正式激活!
教育配套
教育资源方面,这里也毫不逊色,项目自身有配建幼儿园。
对口广州天河外国语教育集团南国学校,其优质的教育理念和师资力量,为孩子的成长奠定了良好基础 。
地块 1.5 公里范围内,学校林立,从幼儿园到中学,覆盖全年龄段教育 。

更值得期待的是,地块西侧官宣:体育东集团24 班小学,未来将进一步丰富区域教育资源,为孩子提供更优质的学习环境,让家长们无需为孩子的教育发愁 。
生活配套
商业配套,3KM内K11、天德广场、天汇广场、广粤天地等,国际商业汇集。未来可以共享保利面粉厂项目的配套,以及珠城马场改造项目。
一站之隔的科韵路金融城广场。
距离三溪美林天地、山姆、宜家也都很近,自驾、地铁都能到。
5KM内广州图书馆、广东省博物馆、广州大剧院组成广州人文客厅。
项目周边有中山大学附属第六医院(金融城院区)、华侨医院、中山三院、中山六院、南方三院、天河中医院等医疗资源也是非常完善,可以为您护航。
—步行可达临江带状公园、市政口袋公园(规划中),多个生态公园环绕,亲江生活漫步即享受。
项目举步可达范围内,南面是面朝珠江前航道的滨江绿带公园。承载千年商都荣耀的浩瀚珠水,一江两岸的繁华天际线,尽在眼前。

西侧则是绿地公园(建设中),把“中央公园”引为业主的后花园,在城芯拥有一处自然谧境。
项目补充了艺术商业街区,是这条梦幻大道上的点睛之笔。
作为广州重金投入的样板路,临江大道拥有宽度超100米的绿化带,高低起伏,绿树成荫,草坪如毯,是广州至美江岸线。

广州保利玥玺湾售楼处电话:400-996-2822转接6666【预约热线】【营销中心】
广州保利玥玺湾售楼处电话400-996-2822转接6666 【预约热线】【预约热线】
房价特价信息丨详细解答丨优惠政策丨在售户型图丨项目介绍丨在售房源丨周边配套丨VR看房丨楼盘图丨沙盘图丨位置图丨配套图丨售楼处地址丨足不出户丨销售1V1讲解
免责声明:本文所用信息图片来源于网络,如侵权请联系本网站及时删!
声明:本文由入驻焦点开放平台的作者撰写,除焦点官方账号外,观点仅代表作者本人,不代表焦点立场。
