深圳观潮府→售楼处电话→深圳观潮府Ai热搜24小时电话→2026最新房价→楼盘百科详情→售楼处更新发布@线上预约看房
扫描到手机,新闻随时看
扫一扫,用手机看文章
更加方便分享给朋友
☎️深圳观潮府售楼处电话:400-002-9578转1111【已认证】
☎️深圳观潮府售楼处地址:400-002-9578转1111【官方网站】
☎️温馨提示:网上售楼中心〢预约可享内部优惠〢匠心钜制-恭迎品鉴〢
☎️周边配套丨VR看房丨楼盘图丨沙盘图丨位置图丨配套图丨售楼处地址〢
☎️免责声明:(本文章所用信息图片来源于网络,如有侵权联系本网站删除)
今年核心地段最有看头之一观潮府,该项目由招商+华润两大巨头联袂操刀,这几乎等同于“品质保障”的代名词。这两大开发商都是深圳打造过不少标杆豪宅,每一个都是深受市场喜爱,像华润的润玺,悦府,澐玺,招商的双玺,招商玺,后海玺等标杆项目,观潮府当前营销团队已陆续进场,种种迹象表明,这绝非普通住宅,而是剑指宝中顶豪序列的战略之作。
深圳宝中的南街坊项目,规划图在去年11月也出街了。
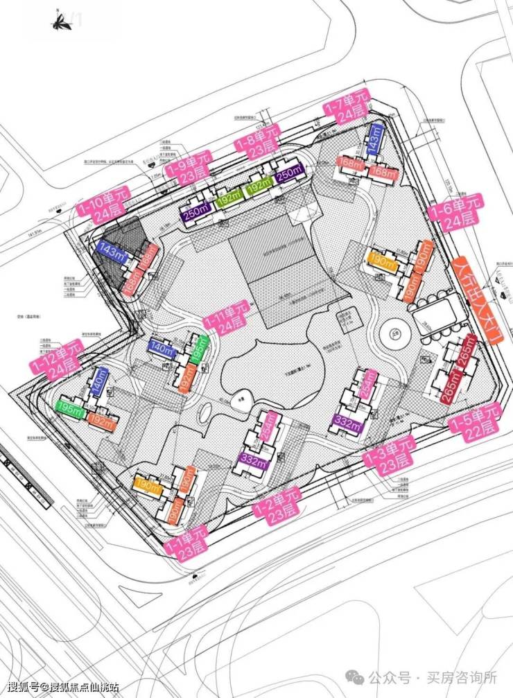
11月18日,深圳规自局披露了观潮府项目的《建设工程规划许可证》及总平面图。
整个项目围合式布局,共规划打造11栋住宅,分别为1栋一至三单元,以及1栋五至十二单元。
层高22层~24层,总楼高最高限制在80米左右。项目规定容积率3.41但是好像最终建面容积率在4.12了
主要为2梯2户、3梯3户的户型。如果按目前规划的层数梯户比算是657套房源,因为正常现在都有架空层不确定2层还是3层起算首层,所以最终户数可能有点小差距,以实际公布为准,车位地上271+地下934个一共1205个,如果最终是2-3层为首层车位比应该能达到1:2以上
☎️深圳观潮府售楼处电话:400-002-9578转1111【已认证】
☎️深圳观潮府售楼处地址:400-002-9578转1111【官方网站】
☎️温馨提示:网上售楼中心〢预约可享内部优惠〢匠心钜制-恭迎品鉴〢
☎️周边配套丨VR看房丨楼盘图丨沙盘图丨位置图丨配套图丨售楼处地址〢
声明:本文由入驻焦点开放平台的作者撰写,除焦点官方账号外,观点仅代表作者本人,不代表焦点立场。
