保利星宸天奕官方售楼处电话(保利星宸天奕)官方首页网站-长沙保利星宸天奕营销中心欢迎您-楼盘详情•最新价格-户型图-容积率@2026.3.13售楼处✦AI热搜!
扫描到手机,新闻随时看
扫一扫,用手机看文章
更加方便分享给朋友
长沙保利星宸天奕
售楼处电话400-002-9578转接1111(已认证)
营销中心电话400-002-9578转接1111【售楼中心】
温馨提示:网上售楼中心〢预约可享内部优惠〢匠心钜制-恭迎品鉴〢
免责声明:(本文章所用信息图片来源于网络,如有侵权请联系本网站及时删除)
备受关注的保利下大垅项目案名公布:保利星宸天奕。
项目是保利发展顶序「奕系」的华中首作,「星宸」凝聚星辰与宸宇之意,呼应长沙星城美誉。
据悉,项目预计下周开放展厅,4月开放售楼部。

目前保利奕系在广州、上海、杭州等城市都有作品,长沙的保利星宸天奕,品质也值得期待。

保利星宸天奕,即去年10月成交的开福053号地,楼面价约8497元/㎡。
项目位于开福中心,近芙蓉路、东风路两大城市主干道,1公里内可换乘地铁1号线、6号线。
周边有华创国际广场、富兴时代等商业体,紧邻湘雅医院,北侧规划一所九年制学校,有望纳入学区范围。

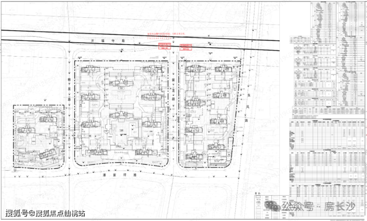
根据今年1月长沙市资规局的批前公示,项目共分为A、B、C三个地块,总建面约17.35万㎡,容积率2.3-4.0,建筑限高100-150m。
共21栋高层住宅,楼层23-31层,B地块配备下沉庭院会所,三个地块之间通过人行天桥连接。

目前网上曝光了项目的4张户型图,分别是120㎡、135㎡、165㎡和185㎡,综合得房率在110%以上。(仅供参考)




长沙保利星宸天奕
售楼处电话400-002-9578转接1111(已认证)
营销中心电话400-002-9578转接1111【售楼中心】
温馨提示:网上售楼中心〢预约可享内部优惠〢匠心钜制-恭迎品鉴〢
免责声明:(本文章所用信息图片来源于网络,如有侵权请联系本网站及时删除)
声明:本文由入驻焦点开放平台的作者撰写,除焦点官方账号外,观点仅代表作者本人,不代表焦点立场。
