三亚康润红树岛售楼处电话→官方营销中心 →No.1→户型图-在售房源-楼盘详情-容积率-备案价@最新资料
扫描到手机,新闻随时看
扫一扫,用手机看文章
更加方便分享给朋友
三亚康润红树岛
售楼处电话400-688-0252【售楼中心】
24小时热线◆温馨提示:看房需提前预约
售楼处电话400-688-0252【售楼中心】
◆在售房源户型价格详询售楼处〢一对一服务
售楼处电话400-688-0252【售楼中心】
24小时热线 全天服务〢售楼处销售1v1专业讲解
开发商:三亚京基花园开发有限公司
产权年限:70年
容积率:1.8
绿化率:40%
总占地:96亩 一期52亩
总建筑面积:10.9万方
层高:3米
楼间距:37-45米
产品:110平 120平 130平 (三个户型均为三房两厅两卫)品质奢居 板式低密洋房
总高:全部为十层高的洋房
电梯户数配比:一梯两户
朝向:南北通透
规划户数:一期578户住宅,45套商铺
规划楼栋:一期11栋
停车位:一期736个
交付标准:精装
交房时间:2026年12月
物业费:待定
【二、区域价值】
1、项目位于三亚中央商务区海罗单元
2、区域发展潜力大:海罗片区是三亚城市更新的重点区域,将打造为国际花园总部、国际人才社区,未来区域价值有望进一步提升。
【三、自然资源】
生态环境优越,项目下楼即是525亩红树林湿地公园、东岸湿地公园、临春岭公园等,自然景观优美,空气清新,适合居住和休闲。
【四、交通配套】
项目位于三亚市吉阳区,地块邻近城市主要交通干道凤凰路以及迎宾路,是连接两条主干道的交通枢纽,各区域通达性强。距离三亚凤凰国际机场、三亚站等交通枢纽也较近,便于岛内外出行。
【五、商业配套】
三公里范围内有海旅免税城、海旅超体、大悦城、青春颂、乐天城等购物中心,满足日常购物及消费需求。
【六、教育配套】
教育方面,周边有三亚市阳光贝贝幼儿园、第七小学海螺校区、丰和学校、迎宾学校重庆巴蜀中学三亚校区等学校,教育资源丰富。
【七、医疗配套】
医疗方面,靠近上海妇幼保健院、三亚市中医院,车程十分钟即可到达。片区内还覆盖了三亚市第三人民医院等医疗机构,为居民健康提供保障。
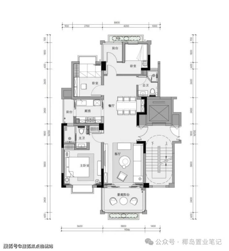
【八、户型展示】
1、A户型:建筑面积约110平方米三房两厅两卫
三亚康润红树岛
售楼处电话400-688-0252【售楼中心】
24小时热线◆温馨提示:看房需提前预约
售楼处电话400-688-0252【售楼中心】
◆在售房源户型价格详询售楼处〢一对一服务
售楼处电话400-688-0252【售楼中心】
24小时热线 全天服务〢售楼处销售1v1专业讲解
声明:本文由入驻焦点开放平台的作者撰写,除焦点官方账号外,观点仅代表作者本人,不代表焦点立场。
