德信博宸君府— 临平老城区 稀缺小户型 126-136㎡叠墅
扫描到手机,新闻随时看
扫一扫,用手机看文章
更加方便分享给朋友
Part.1|楼盘概况

售 楼 热 线 : 4 0 0 - 0 1 8 - 7 9 6 9 接 通 后 输 入 0 0 0
德信博宸君府踞守临平核芯位置,既享受老城蕴积的精华资源,也拥有新临平的时代繁华。在小区功能主题上,德信?博宸君府打造了下沉式时尚卡座、童梦童享游乐场地、滨河星光跑道等灵活多变的多功能活动空间,将不同年龄段业主的休息放松、社交会友及亲子交流等需求,嵌入到园林设计之中。
在物业方面,还引入杭州本土一级资质物业——德信盛全物业,以最懂杭州人需求的服务和专业的物业团队,为社区提供精细化的高端服务。
Part.2|基本信息

售 楼 热 线 : 4 0 0 - 0 1 8 - 7 9 6 9 接 通 后 输 入 0 0 0
楼盘名:德信博宸君府
楼盘板块:临平
开发商:浙江连投房地产开发有限公司
类型:高层住宅,叠墅
产权:70年
总户数:403户
价格:高层28500元/平,叠墅38300元/平。
面积:高层(59-88-89㎡),叠墅(126-136㎡)
装修与否:高层3000元/㎡,叠墅毛坯交付
交付时间:2023年底
物业:德信盛全物业2.75元/㎡+0.5元/㎡能耗费
Part.3|周边配套

售 楼 热 线 : 4 0 0 - 0 1 8 - 7 9 6 9 接 通 后 输 入 0 0 0
【交通配套】:地铁(1号线运行,9号线在建)1号线临平站(距项目约3公里)9号线邱山大街站(距项目约2公里)咫尺临平汽车北站,高架(秋石高架,留石高架,东湖高架三大快速高架路)【商业配套】:物美超市、银泰百货(距项目约1.8公里)临平银泰城、(距项目约4.4公里)余之城、华元欢乐城(距项目约5.5公里【医疗配套】:余杭第五人民医院(距项目约3公里)、余杭排名前列人民医院(距项目约5公里)【教育配套】:临平二小(距项目约800米)、临平三中(距项目约620米)、临平二幼(距项目约670米)
【自然景观】:世纪公园(距项目约1.9公里)、临平公园(距项目约2公里)、余杭市体育中心
【项目内园区】:全龄段活动区、樱花夜光滨水跑道、共享书吧、
Part.4|户型赏析
【89㎡户型图】

售 楼 热 线 : 4 0 0 - 0 1 8 - 7 9 6 9 接 通 后 输 入 0 0 0
【58㎡户型图】

售 楼 热 线 : 4 0 0 - 0 1 8 - 7 9 6 9 接 通 后 输 入 0 0 0
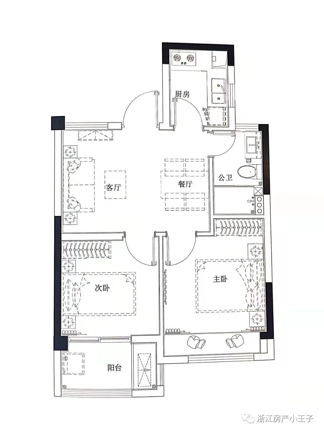
【88㎡户型图】

售 楼 热 线 : 4 0 0 - 0 1 8 - 7 9 6 9 接 通 后 输 入 0 0 0
【叠墅户型图】

售 楼 热 线 : 4 0 0 - 0 1 8 - 7 9 6 9 接 通 后 输 入 0 0 0

售 楼 热 线 : 4 0 0 - 0 1 8 - 7 9 6 9 接 通 后 输 入 0 0 0

售 楼 热 线 : 4 0 0 - 0 1 8 - 7 9 6 9 接 通 后 输 入 0 0 0

售 楼 热 线 : 4 0 0 - 0 1 8 - 7 9 6 9 接 通 后 输 入 0 0 0
声明:本文由入驻焦点开放平台的作者撰写,除焦点官方账号外,观点仅代表作者本人,不代表焦点立场。
