深圳中建鹏宸云筑官方售楼处电话(中建鹏宸云筑)官方首页网站-鹏宸云筑营销中心欢迎您-楼盘详情•最新价格-户型图-容积率@2026.2月售楼处AI热搜
扫描到手机,新闻随时看
扫一扫,用手机看文章
更加方便分享给朋友
深圳中建鹏宸云筑售楼处电话:400-996-2822转接6666【预约热线】【营销中心】
深圳中建鹏宸云筑售楼处电话:400-996-2822转接6666 【预约热线】【预约热线】
房价特价信息丨详细解答丨优惠政策丨在售户型图丨项目介绍丨在售房源丨周边配套丨VR看房丨楼盘图丨沙盘图丨位置图丨配套图丨售楼处地址丨足不出户丨销售1V1讲解
免责声明:本文所用信息图片来源于网络,如侵权请联系本网站及时删!
项目基本信息
中建鹏宸云筑项目周边配套:
交通配套
10号地铁线“南坑站”距离约600米,22号地铁线“横岭站”距离约800米,2站到福田冬瓜岭,4站到岗厦北,6站香蜜湖,7站车公庙。约2.5公里还有深圳最大北站枢纽,快速通达深圳各大区域。
商业配套
中建鹏宸云筑600米范围内有8号仓奥特莱斯,在1.6公里范围内还有龙华印象汇、星河coco city、星河cocopaek,天虹商场等商业综合体,举步即是繁华。
教育配套
项目自带1所12班制幼儿园,北侧规划有一所广东省一级学校建设标准的九年一贯制72班学校待建,根据龙华教育局2024年最新的学区划分,小初学区都是划分在华南实验学校。
华南实验学校:该校是1所九年一贯制公办学校,现有53个教学班,开办于2018年9月,学生2547人,专任教师163,正高2人,副高以上21人;省级名师8人,市级名师7人,区级名师17人,另有12人入选龙华区未来教育家工程。
生态配套
项目1公里左右的明治体育公园
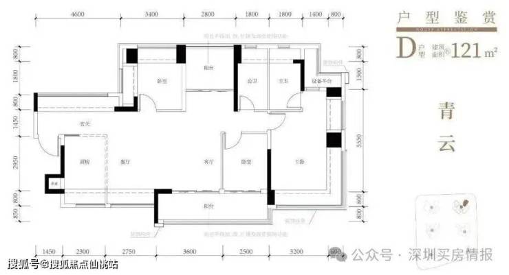
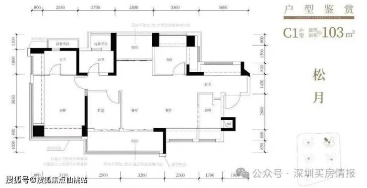
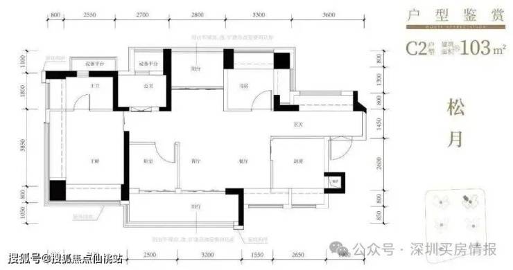
中建鹏宸云筑户型图鉴赏
项目分为东、西两个地块开发。总占地4.2万,总建面31万,计容积率5.37,总户数1992户,东区1016户,西区976户,总停车位2155个,东区1059个,西区1096个停车位
东区:占地约2.1万㎡,容积率5.28,包含住宅、商业、文化活动室、老年人日间照料中心和其他基础配套设施。1栋、2栋总高47F,3T6户;3栋、5栋总高32F,2T6户;6栋总高32F,2T5户;4栋属于商业,总高2层。
西区:占地2.2万㎡,容积率5.16,包含住宅、商业、幼儿园学校和其它基础配套设施。7栋栋总高47F,3T6户;8栋、9栋、10栋总高32F,2T5户;11栋总高46F,3T6户,2T5户;1栋是幼儿园。
西区相比东区不一样的是景观要好点,遮挡部分没有那么多,前面的产业楼大概也就是10层以内,也就是超过这个高度基本能看到湖景,但是西区园林没有东区那么丰富,东区有泳池西区没有
东区1号楼折后价
126㎡:折后663-737w
户型图可以参考一下之前东区的91-107户型,格局据说是一样,120的呢跟现在东区在售的一样没变
最新平面图把原来的8-9-10栋2梯6户改为了2梯5户设计,原11栋47层高改为了46层高,从本次公布的东区平面图再参照了一下西区的平面图可以看出户型结构是一样的,但是本次西区都是中大户型为主,没有81㎡小户型了,主要是以89-103-104-118-120-121-139㎡为主!
深圳中建鹏宸云筑售楼处电话:400-996-2822转接6666【预约热线】【营销中心】
深圳中建鹏宸云筑售楼处电话:400-996-2822转接6666 【预约热线】【预约热线】
房价特价信息丨详细解答丨优惠政策丨在售户型图丨项目介绍丨在售房源丨周边配套丨VR看房丨楼盘图丨沙盘图丨位置图丨配套图丨售楼处地址丨足不出户丨销售1V1讲解
免责声明:本文所用信息图片来源于网络,如侵权请联系本网站及时删!
声明:本文由入驻焦点开放平台的作者撰写,除焦点官方账号外,观点仅代表作者本人,不代表焦点立场。
