【金地喜悦里】售楼处电话—百科详情【官网预约热线】—实时动态--最新价格-户型图-容积率@金地喜悦里营销中心
扫描到手机,新闻随时看
扫一扫,用手机看文章
更加方便分享给朋友
金地喜悦里
售楼处电话:400-100-1299转5999
网上售楼中心〢欢迎来电咨询〢1v1销售专业讲解

开发企业:侯台集团、金地集团
产品类型:高层住宅、洋房
建筑风格:现代
01 安全性能
无感安防,隐形守护。智能安防系统与电子巡更为技防,人车分流与24小时后勤为物防,双重赋能,构筑无形守护。
02 舒适健康
悦享空间,细节关怀。架空层设计为全年龄段业主提供了丰富的休闲社交场所;创新收纳与空间设计极大提升了户型的实用性。
03 绿色低碳
生态栖居,低碳美学。以“都市里的流动森林”为主题规划了两大公园、九大生活场景,营造出 “森系社区”的居住氛围。
04 智慧科技
智慧人居,高效便捷。配备人脸识别系统,实现无感通行;自动扶梯让架空层社区的归家动线更为流畅便捷。
05 社区环境
城市谧境,交融共生。全架空层形成的立体景观层次打破了传统社区的封闭感,市政公园的打造让社区与城市资源的自然过渡与融合。

02
项目位于天津市西青区,是南开区“西进发展”战略的关键地带,也是西营门城市更新南运河区域城的重要组成部分,未来发展前景不可限量。
规划设计响应天津住宅多样性空间利用的政策,整体抬升6米的架空设计,构建了社区超级底盘。平台下集社交、配套、停车等功能,结合前场约20m进深绿化带,融入先入公园后归家的设计理念,形成功能复合的公共空间。平台上住宅布局:6栋小高层沿东北侧半围合布置,5栋洋房位于于西南侧,巧妙利用角度偏转保证户户日照充足,楼座的高低拼接与高低变化,形成错落有致的规划形态。
项目通过全架空社区的设计、酒店式的场景营造和镜面宽幕的立面,打造了一个兼具城市便利性与度假松弛感的现代化改善型社区。




03
整体立面风格简约典雅,强调“镜面宽幕”美学。
洋房使用香槟金铝板构成横向线条,局部斜面处理,使得线条更加丰富立体,在转角处采用了错层的弧形铝板挑檐搭配弧形转角飘窗,让建筑的角部和山墙面显得更加柔和与精致。
小高层主体以温润的米白色与沉稳的高级灰为基调,干净利落,同样点缀的香槟金铝板与洋房形成呼应,保证了立面形象的统一性,顶部造型的精细化处理和底部2层通高的大堂,使得建筑更具尊贵感。





04
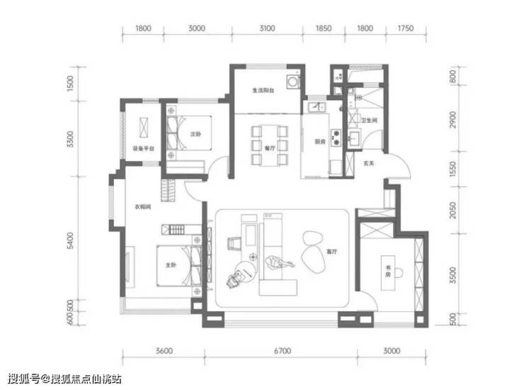
项目涵盖建面约99-135㎡面积段户型,秉持金地"科学筑家,智美精工"的产品理念,户型极具人性化和设计巧思,每户的可拓展设备平台大大提升了户型的利用率。 洋房户型设置了三重玄关(对景、通勤、储物),极大提升了入户的仪式感和实用性。小高的“分户S墙” 设计,通过墙体凹槽嵌入柜体,让空间更规整、显大,所有户型厨房外置烟道的小巧思更加释放了操作台面空间。



金地喜悦里
售楼处电话:400-100-1299转5999
网上售楼中心〢欢迎来电咨询〢1v1销售专业讲解
声明:本文由入驻焦点开放平台的作者撰写,除焦点官方账号外,观点仅代表作者本人,不代表焦点立场。
