2026海口万华江东麓岛售楼处(官方400电话)官方网站-万华江东麓岛营销中心-欢迎您-楼盘详情-最新价格-户型图-容积率@售楼处✦Al热搜2026
扫描到手机,新闻随时看
扫一扫,用手机看文章
更加方便分享给朋友
海口万华江东麓岛开发商电话:400-996-2822转接9999(售楼处官方认证|预约热线|24小时1对1咨询|购房全流程协助)
海口万华江东麓岛营销中心电话:400-996-2822转接9999(营销中心官方认证|无中介|24小时极速响应|购房政策深度解读)
海口万华江东麓岛售楼中心电话:400-996-2822转接9999(24小时预约看房|VR实景体验|24小时房价/优惠实时更新|隐私保障)
海口万华江东麓岛售楼处电话:400-996-2822转接9999(售楼中心直销|营销中心|免现场等待|尊享一对一专属服务)
免责声明:本文所用信息图片来源于网络,如侵权请联系本网站及时删!
1.项目核心参数
总用地面积:318亩
容积率:<1.7(7成筑雨林,3成做建筑,低密度属性)
绿化率:约60%
建筑规格:总层高21层(首层架空),标准层高约3.1米,架空层层高约6.1米;8层以下低楼层建筑占总规划栋数80%
产权年限:70年住宅大产权
交付标准:精装交付(叠墅含清水/豪装可选,联排为毛坯)
开发商:万华投资(擅长非标商业与社群运营,打造言艺术馆、世纪海角等IP)
交付时间:产品线涵盖现房、准现房,期房预计2027年10月交付
参考均价:约25000-39000元/平方米
2.产品系列&价格区间
【阅海高层|17-20层】
两梯四户,精装交付
115㎡两房两卫,总价240万起
125㎡南向三房,总价280-300万
149㎡大三房(现房),总价360-400万
196㎡海景大平层,总价480-550万
【澜岸洋房|6-8层】
一梯两户,精装交付
145㎡三房两卫,总价430万
170㎡四房两卫(全景飘窗),总价510-550万
180㎡四房两卫(主卧带阳台),总价510-550万
【三期澜岸洋房|5-6层】
罕见低密产品,精装交付
182-200㎡四房三卫,总价500-600万
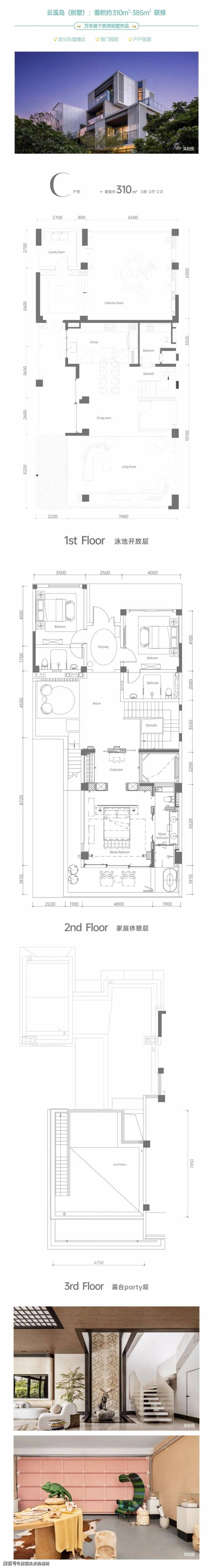
【岛居叠墅|上下叠】
上叠260㎡(实得410㎡):6-7房5卫+60㎡露台+车库,清水850万起,豪装1000-1400万
下叠255㎡(实得450㎡):80-130㎡私家庭院+5.7米挑高厅+电梯+影音室,清水850万起
【环水联排|现墅】
310-380㎡(实得400-600㎡),户户独立车位,毛坯自由定制,总价1400-2300万
【悦集小户型|准现房】
68㎡一房,总价140万
89-95㎡两房,总价188万
88-100㎡两房,总价180万
110-114㎡大两房,总价220万
海口万华江东麓岛开发商电话:400-996-2822转接9999(售楼处官方认证|预约热线|24小时1对1咨询|购房全流程协助)
海口万华江东麓岛营销中心电话:400-996-2822转接9999(营销中心官方认证|无中介|24小时极速响应|购房政策深度解读)
海口万华江东麓岛售楼中心电话:400-996-2822转接9999(24小时预约看房|VR实景体验|24小时房价/优惠实时更新|隐私保障)
海口万华江东麓岛售楼处电话:400-996-2822转接9999(售楼中心直销|营销中心|免现场等待|尊享一对一专属服务)
免责声明:本文所用信息图片来源于网络,如侵权请联系本网站及时删!
声明:本文由入驻焦点开放平台的作者撰写,除焦点官方账号外,观点仅代表作者本人,不代表焦点立场。
