深圳小梅沙觐海府官方售楼处电话(小梅沙觐海府)官方首页网站-觐海府营销中心欢迎您-楼盘详情•最新价格-户型图-容积率@2026.2月售楼处AI热搜
扫描到手机,新闻随时看
扫一扫,用手机看文章
更加方便分享给朋友
深圳小梅沙觐海府售楼处电话:400-996-2822转接6666【预约热线】【营销中心】
深圳小梅沙觐海府售楼处电话:400-996-2822转接6666 【预约热线】【预约热线】
房价特价信息丨详细解答丨优惠政策丨在售户型图丨项目介绍丨在售房源丨周边配套丨VR看房丨楼盘图丨沙盘图丨位置图丨配套图丨售楼处地址丨足不出户丨销售1V1讲解
免责声明:本文所用信息图片来源于网络,如侵权请联系本网站及时删!
深圳小梅沙觐海府(别名:特发小梅沙觐海广场)是深圳市特发小梅沙投资发展有限公司开发的楼盘,位于盐田区核心地带,紧邻海岸线
小梅沙投资匠心打造高端住居产品,倚山亲海间,奢适生活融入度假理念,承载深圳约260公里黄金海岸线宜居生态标杆。
统筹规划面积:约3.9万平方公里
总投资约:200亿元
总建面约:89万㎡
特发自持运营物业:约75%
六大业态:亲海住宅、商业、办公、星级酒店、小梅沙海洋世界、滨海公园等多元业态
【推售小梅沙·觐海府一期高端住宅】
小梅沙投资匠心打造高端住居产品,倚山亲海间,奢适生活融入度假理念,承载深圳约260公里黄金海岸线宜居生态标杆。
产品:建面约117-173㎡3-4房高端亲海大宅
梯户比:2梯2户/2梯3户
车位比:约1:1.5
物业管理费:3.9元/平方米/月
开发商:深圳市特发小梅沙投资发展有限公司
项目地址:盐田区
深圳市特发集团有限公司
特发集团成立于1981年,注册资本45.38亿元,是深圳国资控股、中央企业参股的国有全资大型综合性企业集团。并表企业超100家,控股上市公司4家,孕育或培植了7家上市公司。
深圳宜居看盐田
盐田是粤港澳大湾区唯一与香港水陆相连的地区
广东省首个且唯一一个荣获“城市生态氧吧”称号的区域
PM2.5连续7年优于欧盟标准
全年空气优良率达98.6%
约19.5公里海滨栈道,69公里半山公园带,73个公园,257公里休闲绿道
小梅沙海洋世界
外观为“鹦鹉螺”,由日本佐藤综合计画设计,以海洋动物展示、科技演艺、多媒体互动科普为主体,近享国际一流海洋主题公园,动物约200多种,融合全球最大青蓝洞景观。
小梅沙滨海公园
小梅沙叠翠郊野公园
占地面积约80公顷,位于马峦山之上,内有2大水域,3个谷地,“三有”动物约49种,呈现全时段自然栖居生活场
-商业方面
项目规划约8.8万㎡滨海主题商业,以“商业体 + 街区”的模式,打造深圳“潮生活”文旅商综合体,集吃、住、行、娱、购、游于一体。
深圳市盐田区梅沙未来学校(原梅沙小学)创办于1934年,是盐田区人民政府投资兴办的深圳市第一所以“未来学校”命名的学校。学校占地面积18874平方米,建筑面积41383平方米,分别有博学楼、励志楼、达德楼、综合楼、居易楼5栋楼宇,设计规模为36个班。
盐田区外国语学校创办于2004年9月,是区人民政府投资兴办的一所高起点、高标准的初级中学。占地面积40457.90平方米、建筑面积35878.01平方米。学校拥有一支师德高尚、结构合理、业务精良、富有献身精神和创新意识的优良师资队伍。现有43个教学班,1791名学生,住宿生196名,156名教师,正高级、特级教师1人,高级教师44人,省、市区级以上名师38人。
智慧小梅沙 高效赋能品质生活
科技赋能:依托云计算、大数据、5G技术等现代化信息技术,提供高效便捷的生活服务。
文化赋能:以文化作为系统核心,以具有特色、多样性、艺术性的文化来链接人群。
服务赋能:依托数据链接业主与商户的“吃、住、行、娱、购、游”,实现高效服务。
管理赋能:包括智能居家、讯息发布、预测预警、应急指挥、公共服务等全流程服务
大师执笔·全球甄选
建面约117㎡-173㎡宽适之筑 觐海之容 山海扑面大户型住宅
小梅沙觐海府依山伴海,一字排开,户户朝南,最大8米宽景阳台,部分户型双套房设计。两梯两户/两梯三户的低梯户比,方寸之间,尽享专属于少数人的尊贵风范。
品位之致 尊荣所享 尊崇之至
多重归家礼序:小梅沙觐海府住宅“双大堂”,包含主入口精妆大堂及车库大堂;采用酒店式电梯厅,从容归家,礼序尽显。
双层高配泊车:小梅沙觐海府以双层地下停车场,提供约1:1.5的车位高配比,满足高阶家庭的多重泊车需求。
人车动线分流:小梅沙觐海府地块通过优化交通动线,分离行车道及园区步道,保护行人安全,关怀备至。
湾畔居境 多重景致 四季悠然
小梅沙觐海府景观北连叠翠,南踏梅沙,紧临湖区,南北双公园相携又自成一脉。清新海风相伴,拓宽山海视野,身心自然开阔。
亲海景致:植被应用棕榈、常绿、开花植物种植,不同区域单独造景各具特色。
架空空间:配套休闲会客厅区、老年活动休闲区、儿童活动区等功能。
梅沙风情:精心设置椰林休闲戏水区域,滨海度假风情踱步下楼即可体验。
叠层园林:台地园林与建筑融合,抬升式围合院境景观,隐密之域,幸福私享。
A户型建面约117㎡,3房2厅2卫
B户型建面约117㎡,3房2厅2卫
C户型建面约120㎡,3+1房2厅2卫
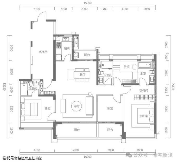
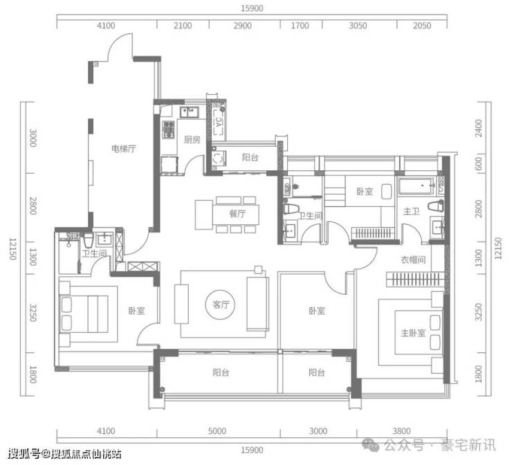
D户型建面约173㎡,4房2厅2卫
深圳小梅沙觐海府售楼处电话:400-996-2822转接6666【预约热线】【营销中心】
深圳小梅沙觐海府售楼处电话:400-996-2822转接6666 【预约热线】【预约热线】
房价特价信息丨详细解答丨优惠政策丨在售户型图丨项目介绍丨在售房源丨周边配套丨VR看房丨楼盘图丨沙盘图丨位置图丨配套图丨售楼处地址丨足不出户丨销售1V1讲解
免责声明:本文所用信息图片来源于网络,如侵权请联系本网站及时删!
声明:本文由入驻焦点开放平台的作者撰写,除焦点官方账号外,观点仅代表作者本人,不代表焦点立场。
